单选

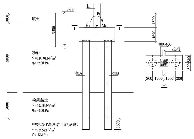
某框架结构办公楼边柱的截面尺寸为800mm×800mm,采用泥浆护壁钻孔灌注桩两桩承台独立基础。作用效应标准组合时,作用于基础承台顶面的竖向力Fk=5000kN,水平力Hk=250kN,力矩Mk=350kN·m,基础及其以上土的加权平均重度取20kN/m3,承台及柱的混凝土强度等级均为C35,钻孔灌注桩直径800mm,承台厚度h=1600mm。基础立面、岩土条件及对应于泥浆护壁钻孔灌注桩的极限侧阻力及端阻力标准值如题~12图所示。
提示:按《建筑桩基技术规范》(JGJ 94—2008)作答。

试问,根据岩土物理指标初步确定的钻孔灌注桩单桩承载力特征值Ra(kN),与下列何项数值最为接近?(  )

A 2900
B 3500
C 6000
D 7000

正确答案
A
查看解析

相关试题

单选
关于砌体结构有以下观点: Ⅰ.多孔砖砌体的抗压承载力设计值按砌体的毛截面面积进行计算; Ⅱ.石材的强度等级应以边长为150mm的立方体试块抗压强度表示; Ⅲ.一
A Ⅰ、Ⅲ B Ⅱ、Ⅲ C Ⅰ、Ⅳ D Ⅱ、Ⅳ
查看
单选
通过室内固结试验获得压缩模量用于沉降验算时,关于某深度土的室内固结试验最大加载压力值,下列何项论述最为正确?( )
A 高压固结试验的最高压力值应取32MPa B 应大于土的有效自重压力和附加压力之和 C 应大于土的有效自重压力和附加压力两者之大值 D 应大于设计有效荷载所对应的压力值
查看
单选
关于高层建筑混凝土结构剪力墙连梁刚度折减的论述,根据《高层建筑混凝土结构技术规程》(JGJ 3—2010),下列何项不够准确?( )
A 多遇地震作用下结构内力计算时,可对剪力墙连梁的刚度予以折减,折减系数不宜小于0.5 B 风荷载作用下结构内力计算时,不宜考虑剪力墙连梁的刚度折减 C 设防地震作用下第3性能水准结构,采用等效弹性方法对竖向构件及关键部位构件内力计算时,剪力墙连梁的刚度折减系数不宜小于0.3 D 多遇地震作用下结构内力计算时,8度抗震设防的剪力墙结构,连梁调幅后的弯矩、剪力设计值不宜低于6度地震作用组合所得的弯矩、剪力设计值
查看
单选
某多层砌体结构承重横墙,如如图所示,墙厚240mm,总长度为5040mm,墙两端及墙段正中部位均设构造柱,柱截面尺寸均为240mm×240mm,构造柱混凝土强度
A 370 B 420 C 470 D 520
查看
单选
一未经切削的东北落叶松(TC17B)原木简支檩条,标注直径为120mm,计算跨度为3.6m。该檩条的安全等级为二级,设计使用年限为50年。试问,按照抗弯承载力控
A 2.2 B 2.6 C 3.0 D 3.6
查看
单选
某剪力墙结构底部加强部位墙肢局部如题图所示,抗震等级为二级,墙肢总长度为5600mm,采用C40混凝土,轴压比为0.45,端柱纵筋、箍筋、墙分布均采用HRB40
A 1200 B 900 C 840 D 600
查看
单选
某剪力墙结构底部加强部位墙肢局部如题图所示,抗震等级为二级,墙肢总长度为5600mm,采用C40混凝土,轴压比为0.45,端柱纵筋、箍筋、墙分布均采用HRB40
A 1300 B 3600 C 4200 D 5100
查看
单选
某剪力墙结构底部加强部位墙肢局部如题图所示,抗震等级为二级,墙肢总长度为5600mm,采用C40混凝土,轴压比为0.45,端柱纵筋、箍筋、墙分布均采用HRB40
A 1.30% B 1.10% C 0.90% D 0.70%
查看
单选
某房屋采用墙下条形基础,建筑东端的地基浅层存在最大厚度4.3m的淤泥质黏土,方案设计时采用换填垫层对浅层淤泥质黏土进行地基处理,地下水位在地面以下1.5m,基础
A 120 B 150 C 180 D 210
查看
单选
某房屋采用墙下条形基础,建筑东端的地基浅层存在最大厚度4.3m的淤泥质黏土,方案设计时采用换填垫层对浅层淤泥质黏土进行地基处理,地下水位在地面以下1.5m,基础
A 55 B 65 C 80 D 100
查看
刷题小程序
(结构) 专业考试二级题库小程序