单选

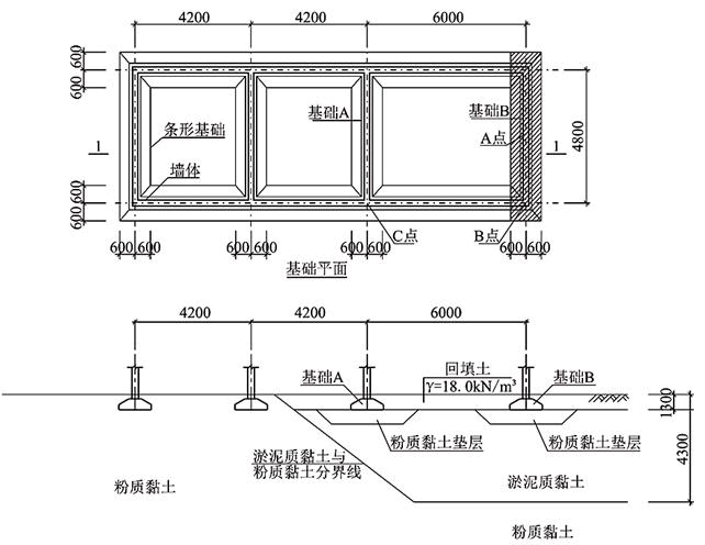
某房屋采用墙下条形基础,建筑东端的地基浅层存在最大厚度4.3m的淤泥质黏土,方案设计时采用换填垫层对浅层淤泥质黏土进行地基处理,地下水位在地面以下1.5m,基础及其上的土体加权平均重度取20kN/m3,基础平面、剖面及地基土层分布如题~10图所示。

假定,该房屋为砌体结构,BC段基础由于地基条件差异产生倾斜。试问,按《建筑地基基础设计规范》(GB 50007—2011)局部倾斜要求控制时,B、C点的实际沉降差最大允许值(mm),与下列何项数值最为接近?(  )
提示:地基按高压缩性土考虑。

A 6
B 9
C 12
D 18

正确答案
D
查看解析

相关试题

单选
关于砌体结构有以下观点: Ⅰ.多孔砖砌体的抗压承载力设计值按砌体的毛截面面积进行计算; Ⅱ.石材的强度等级应以边长为150mm的立方体试块抗压强度表示; Ⅲ.一
A Ⅰ、Ⅲ B Ⅱ、Ⅲ C Ⅰ、Ⅳ D Ⅱ、Ⅳ
查看
单选
通过室内固结试验获得压缩模量用于沉降验算时,关于某深度土的室内固结试验最大加载压力值,下列何项论述最为正确?( )
A 高压固结试验的最高压力值应取32MPa B 应大于土的有效自重压力和附加压力之和 C 应大于土的有效自重压力和附加压力两者之大值 D 应大于设计有效荷载所对应的压力值
查看
单选
关于高层建筑混凝土结构剪力墙连梁刚度折减的论述,根据《高层建筑混凝土结构技术规程》(JGJ 3—2010),下列何项不够准确?( )
A 多遇地震作用下结构内力计算时,可对剪力墙连梁的刚度予以折减,折减系数不宜小于0.5 B 风荷载作用下结构内力计算时,不宜考虑剪力墙连梁的刚度折减 C 设防地震作用下第3性能水准结构,采用等效弹性方法对竖向构件及关键部位构件内力计算时,剪力墙连梁的刚度折减系数不宜小于0.3 D 多遇地震作用下结构内力计算时,8度抗震设防的剪力墙结构,连梁调幅后的弯矩、剪力设计值不宜低于6度地震作用组合所得的弯矩、剪力设计值
查看
单选
某多层砌体结构承重横墙,如如图所示,墙厚240mm,总长度为5040mm,墙两端及墙段正中部位均设构造柱,柱截面尺寸均为240mm×240mm,构造柱混凝土强度
A 370 B 420 C 470 D 520
查看
单选
一未经切削的东北落叶松(TC17B)原木简支檩条,标注直径为120mm,计算跨度为3.6m。该檩条的安全等级为二级,设计使用年限为50年。试问,按照抗弯承载力控
A 2.2 B 2.6 C 3.0 D 3.6
查看
单选
某剪力墙结构底部加强部位墙肢局部如题图所示,抗震等级为二级,墙肢总长度为5600mm,采用C40混凝土,轴压比为0.45,端柱纵筋、箍筋、墙分布均采用HRB40
A 1200 B 900 C 840 D 600
查看
单选
某剪力墙结构底部加强部位墙肢局部如题图所示,抗震等级为二级,墙肢总长度为5600mm,采用C40混凝土,轴压比为0.45,端柱纵筋、箍筋、墙分布均采用HRB40
A 1300 B 3600 C 4200 D 5100
查看
单选
某剪力墙结构底部加强部位墙肢局部如题图所示,抗震等级为二级,墙肢总长度为5600mm,采用C40混凝土,轴压比为0.45,端柱纵筋、箍筋、墙分布均采用HRB40
A 1.30% B 1.10% C 0.90% D 0.70%
查看
单选
某房屋采用墙下条形基础,建筑东端的地基浅层存在最大厚度4.3m的淤泥质黏土,方案设计时采用换填垫层对浅层淤泥质黏土进行地基处理,地下水位在地面以下1.5m,基础
A 120 B 150 C 180 D 210
查看
单选
某房屋采用墙下条形基础,建筑东端的地基浅层存在最大厚度4.3m的淤泥质黏土,方案设计时采用换填垫层对浅层淤泥质黏土进行地基处理,地下水位在地面以下1.5m,基础
A 55 B 65 C 80 D 100
查看
刷题小程序
(结构) 专业考试二级题库小程序