单选

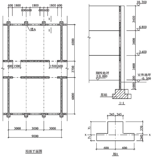
某三层砌体结构局部平、剖如题~25图所示,各层平面布置相同,各层层高均为3.40m;楼、屋盖均为现浇钢筋混凝土板,底层设有刚性地坪,静力计算方案为刚性方案。纵横墙厚度均为240mm,采用MU10级烧结普通砖、M7.5级混合砂浆建筑,砌体施工质量控制等级为B级。

x轴通过墙A整截面的形心,试问,带壁柱墙A对截面形心x轴的惯性矩I(mm4),与下列何项数值最为接近?(  )

A 8280×106
B 9260×106
C 12600×106
D 13800×106

正确答案
D
查看解析

相关试题

单选
某普通钢筋混凝土等截面连续梁,结构设计使用年限为50年,安全等级为二级,其计算简图和支座B左侧边缘(1—1)截面处的配筋示意如题~3图所示。混凝土强度等级C35
A 360 B 380 C 400 D 420
查看
单选
某普通办公楼为钢筋混凝土框架结构,楼盖为梁板承重体系,其楼层平面及剖面如如图所示。屋面为不上人屋面,隔墙均为固定隔墙,假定二次装修荷载作为永久荷载考虑。试问,当
A 140 B 150 C 180 D 210
查看
单选
某六层钢筋混凝土框架结构,抗震等级为三级,结构层高3.9m,所有框架梁顶均与楼板面平。假定,其中某框架柱混凝土强度等级为C40,轴压0.7,箍筋的保护层厚度c=
A 该框架柱的体积配箍率为0.96%,箍筋配置满足《混凝土结构设计规范》(GB 50010—2010)(2015年版)的构造要求 B 该框架柱的体积配箍率为1.11%,箍筋配置满足《混凝土结构设计规范》(GB 50010—2010)(2015年版)的构造要求 C 该框架柱的体积配箍率为0.96%,箍筋配置不满足《混凝土结构设计规范》(GB 50010—2010)(2015年版)的构造要求 D 该框架柱的体积配箍率为1.11%,箍筋配置不满足《混凝土结构设计规范》(GB 50010—2010)(2015年版)的构造要求
查看
单选
某五层现浇钢筋混凝土框架结构,双向柱距均为8.1m,房屋总高度18.3m。抗震设防烈度7度(0.10g),设计地震分组为第二组,建筑场地类别为Ⅲ类,抗震设防类别
A 750 B 800 C 850 D 900
查看
单选
假定,某钢筋混凝土框架—剪力墙结构,框架的抗震等级为三级,剪力墙的抗震等级为二级。试问,该结构中下列何种构件的纵向受力普通钢筋,强制性要求其在最大拉力作用下的总
A ① B ①+② C ①+③ D ①+②+③
查看
单选
平原地区某建筑物的现浇钢筋混凝土板式雨篷,宽度3.6m,挑出长度1n=2m,如如图所示。假定基本雪压s0=0.95kN/m2,试问,雨篷根部由雪荷载引起的弯矩标
A 2 B 4.0 C 6.0 D 8.0
查看
单选
某普通钢筋混凝土等截面连续梁,结构设计使用年限为50年,安全等级为二级,其计算简图和支座B左侧边缘(1—1)截面处的配筋示意如题~3图所示。混凝土强度等级C35
A 1.2 B 1.5 C 1.7 D 2.0
查看
单选
某普通钢筋混凝土等截面连续梁,结构设计使用年限为50年,安全等级为二级,其计算简图和支座B左侧边缘(1—1)截面处的配筋示意如题~3图所示。混凝土强度等级C35
A 860 B 940 C 102 D 1100
查看
单选
抗震设防烈度为7度(0.1g)的某规则剪力墙结构,房屋高度22m,抗震设防类别为乙类。假定,位于底部加强区的某剪力墙如如图所示,其底层重力荷载代表值作用下的轴压
A 左端:lc=650,a=400;右端:lc=550,b=550 B 左端:lc=700,a=700;右端:lc=550,b=550 C 左端:lc=650,a=400;右端:lc=500,b=500 D 左端:lc=700,a=700;右端:lc=500,b=500
查看
单选
假定,某7度区甲、乙、丙三栋现浇钢筋混凝土结构建筑,抗震设防类别均为丙类,如如图所示。试问,甲乙之间、乙丙之间满足《建筑抗震设计规范》(GB 50011—201
A 140,120 B 200,170 C 200,120 D 240,240
查看
刷题小程序
(结构) 专业考试二级题库小程序