首页
考研
最新考研题库
中外美术史23新版
建筑类
二级建造师
一级建造师
一级造价工程师
监理工程师
安全工程师
一级消防工程师
消防设施操作员
医学类
主治类
执业药师
护师(初级)资格证考试
主管护师(中级)资格证考试
护士资格证考试
医师类
中药学类
金融类
基金从业资格
银行从业资格
证券从业资格
期货从业资格
银行招聘考试
财会类
初级经济师
中级经济师
初级会计师
中级会计师
注册会计师
税务师
资产评估师
教师类
中学教师笔试
小学教师笔试
幼儿教师笔试
幼儿结构化面试
幼儿专业面试
中小学结构化面试
学历提升
成考(专升本)
成考(高起本、高起专)
自考
网校课程
登录
注册好礼
我的主页
我的提问
我的回答
退出
当前位置:
首页
>
(结构) 专业考试二级
>
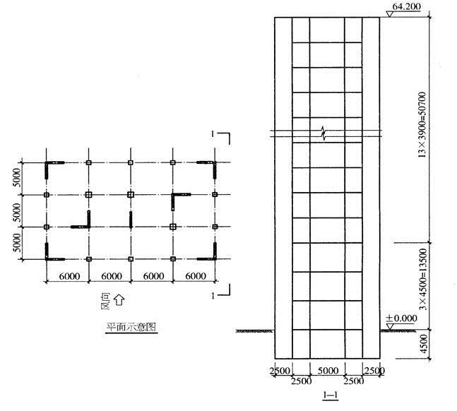
某地上16层、地下1层的现浇钢筋混凝土框架-剪力墙办公楼,如图所示。房屋高度为64.2m,该建筑地下室至地上第3层的层高
单选
某地上16层、地下1层的现浇钢筋混凝土框架-剪力墙办公楼,如图所示。房屋高度为64.2m,该建筑地下室至地上第3层的层高均为4.5m,其余各层层高均为3.9m,质量和刚度沿高度分布比较均匀,丙类建筑,抗震设防烈度为7度,设计基本地震加速度为0.15g,设计地震分组为第一组,Ⅲ类场地,在规定的水平力作用下,结构底层框架部分承受的地震倾覆力矩大于结构总地震倾覆力矩的10%但不大于50%,地下1层顶板为上部结构的嵌固端。构件混凝土强度等级均为C40
A 1320、400
B 1400、400
C 1320、378
D 1680、432
正确答案
A
查看解析
搜索
相关试题
刷题小程序
热门试卷