首页
考研
最新考研题库
中外美术史23新版
建筑类
二级建造师
一级建造师
一级造价工程师
监理工程师
安全工程师
一级消防工程师
消防设施操作员
医学类
主治类
执业药师
护师(初级)资格证考试
主管护师(中级)资格证考试
护士资格证考试
医师类
中药学类
金融类
基金从业资格
银行从业资格
证券从业资格
期货从业资格
银行招聘考试
财会类
初级经济师
中级经济师
初级会计师
中级会计师
注册会计师
税务师
资产评估师
教师类
中学教师笔试
小学教师笔试
幼儿教师笔试
幼儿结构化面试
幼儿专业面试
中小学结构化面试
学历提升
成考(专升本)
成考(高起本、高起专)
自考
网校课程
登录
注册好礼
我的主页
我的提问
我的回答
退出
当前位置:
首页
>
(结构) 专业考试二级
>
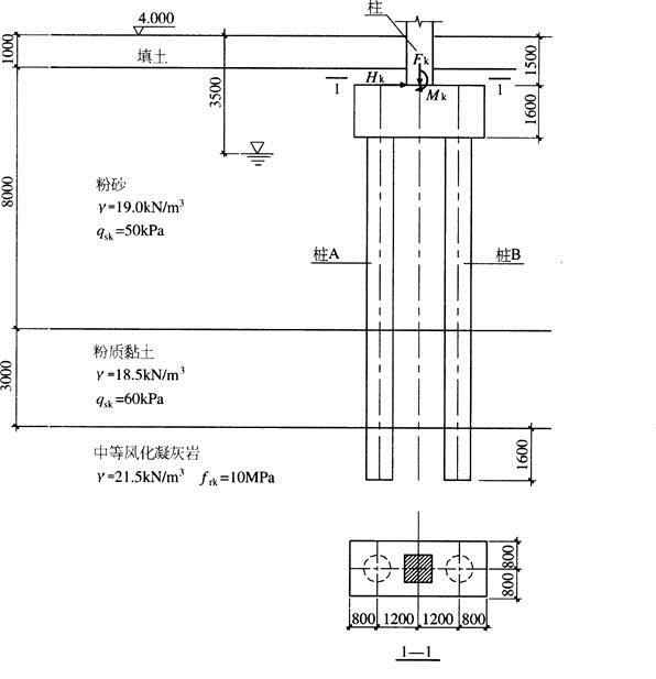
某框架结构办公楼边柱的截面尺寸为800mm×800mm,采用泥浆护钻孔壁灌注桩两桩承台独立基础。荷载效应标准组合时,作用
单选
某框架结构办公楼边柱的截面尺寸为800mm×800mm,采用泥浆护钻孔壁灌注桩两桩承台独立基础。荷载效应标准组合时,作用于基础承台顶面的竖向力Fk=5800kN,水平力Hk=200kN,力矩Mk=350kN·m,基础及其以上土的加权平均重度取20kN/m3,承台及柱的混凝土强度等级均为C35。抗震设防烈度7度,设计基本地震加速度值0.10g,设计地震分组第一组。钻孔灌注桩直径800mm,承台厚度1600mm,h0取1500mm。基础剖面及土层条件见图5-16。[2011年真题]
提示:①本题按《建筑桩基技术规范》(JGJ 94—2008)作答。②C35混凝土,ft=1.57N/mm2。
2.荷载效应基本组合由永久荷载控制。试问,承台正截面最大弯矩设计值(kN·m),与下列何项数值最为接近?( )
A 2550
B 2700
C 3450
D 3650
正确答案
C
查看解析
搜索
相关试题
刷题小程序
热门试卷