首页
考研
最新考研题库
中外美术史23新版
建筑类
二级建造师
一级建造师
一级造价工程师
监理工程师
安全工程师
一级消防工程师
消防设施操作员
医学类
主治类
执业药师
护师(初级)资格证考试
主管护师(中级)资格证考试
护士资格证考试
医师类
中药学类
金融类
基金从业资格
银行从业资格
证券从业资格
期货从业资格
银行招聘考试
财会类
初级经济师
中级经济师
初级会计师
中级会计师
注册会计师
税务师
资产评估师
教师类
中学教师笔试
小学教师笔试
幼儿教师笔试
幼儿结构化面试
幼儿专业面试
中小学结构化面试
学历提升
成考(专升本)
成考(高起本、高起专)
自考
网校课程
登录
注册好礼
我的主页
我的提问
我的回答
退出
当前位置:
首页
>
(结构) 专业考试二级
>
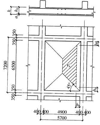
某高层建筑梁板式筏基的地基基础设计等级为乙级,筏板的最大区格划分如图所示。筏板混凝土强度等级为C35, 假定筏基底面处的
单选
某高层建筑梁板式筏基的地基基础设计等级为乙级,筏板的最大区格划分如图所示。筏板混凝土强度等级为C35,
假定筏基底面处的地基土力均匀分布,且相应于荷载效应基本组合的地基土净反力设计值P=350kPa。[2012年真题]
提示:计算时取
1.试问,为满足底板受冲切承载力的要求,初步估算筏板所需的最小厚度h(mm),应与下列何项数值最为接近?( )
A A、350
B B、400
C C、420
D D、470
正确答案
C
查看解析
搜索
相关试题
刷题小程序
热门试卷