首页
考研
最新考研题库
中外美术史23新版
建筑类
二级建造师
一级建造师
一级造价工程师
监理工程师
安全工程师
一级消防工程师
消防设施操作员
医学类
主治类
执业药师
护师(初级)资格证考试
主管护师(中级)资格证考试
护士资格证考试
医师类
中药学类
金融类
基金从业资格
银行从业资格
证券从业资格
期货从业资格
银行招聘考试
财会类
初级经济师
中级经济师
初级会计师
中级会计师
注册会计师
税务师
资产评估师
教师类
中学教师笔试
小学教师笔试
幼儿教师笔试
幼儿结构化面试
幼儿专业面试
中小学结构化面试
学历提升
成考(专升本)
成考(高起本、高起专)
自考
网校课程
登录
注册好礼
我的主页
我的提问
我的回答
退出
当前位置:
首页
>
(结构) 专业考试二级
>
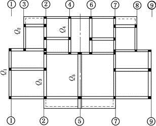
单选题 某6层住宅(见图),各层层高为2.8m。室外高差为0.6m,基础埋深1.6m,墙厚190mm,建筑面积为1990
单选
单选题 某6层住宅(见图),各层层高为2.8m。室外高差为0.6m,基础埋深1.6m,墙厚190mm,建筑面积为1990.74m2,现浇钢筋混凝土楼屋盖。砌块为MU15,第1层到第3层采用Mb10砂浆,第4层到第6层采用Mb7.5混合砂浆,施工质量控制等级为B级。基础形式为天然地基条形基础。场地类别Ⅳ类,抗震设防烈度为7度(设计基本地震加速度为0.1g),设计地震分组为第二组。
1.已知各层的计算高度和各层的重力代表值(1.0静载+0.5活载)如表所示。三层的地震作用标准值F3(kN)与下列何项数值相接近?( )
A A、310.2
B B、239.0
C C、167.8
D D、159.0
正确答案
B
查看解析
搜索
相关试题
刷题小程序
热门试卷