首页
考研
最新考研题库
中外美术史23新版
建筑类
二级建造师
一级建造师
一级造价工程师
监理工程师
安全工程师
一级消防工程师
消防设施操作员
医学类
主治类
执业药师
护师(初级)资格证考试
主管护师(中级)资格证考试
护士资格证考试
医师类
中药学类
金融类
基金从业资格
银行从业资格
证券从业资格
期货从业资格
银行招聘考试
财会类
初级经济师
中级经济师
初级会计师
中级会计师
注册会计师
税务师
资产评估师
教师类
中学教师笔试
小学教师笔试
幼儿教师笔试
幼儿结构化面试
幼儿专业面试
中小学结构化面试
学历提升
成考(专升本)
成考(高起本、高起专)
自考
网校课程
登录
注册好礼
我的主页
我的提问
我的回答
退出
当前位置:
首页
>
(结构) 专业考试二级
>
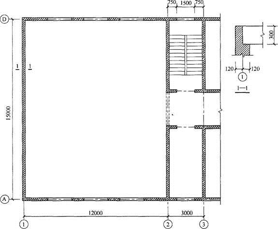
方案初期,某四层砌体结构房屋顶层局部平面布置图如图所示,层高均为3.6m。墙体采用MU10级烧结多孔砖、M5级混合砂浆砌
单选
方案初期,某四层砌体结构房屋顶层局部平面布置图如图所示,层高均为3.6m。墙体采用MU10级烧结多孔砖、M5级混合砂浆砌筑。墙厚为240mm。屋面板为预制预应力空心板上浇钢筋混凝土叠合层,屋面板总厚度为300mm,简支在①轴和②轴墙体上,支承长度为120mm。屋面永久荷载标准值为12kN/m2,活荷载标准值为0.5kN/m2。砌体施工质量控制等级为B级;抗震设防烈度为7度,设计基本地震加速度为0.1g。[2013年真题]
4.假定,将①轴墙体设计为砖砌体和钢筋混凝土构造柱组成的组合墙。试问,①轴墙体内最少应设置的构造柱数量,与下列何项数值最为接近?( )
提示:按《砌体结构设计规范》(GB 50003—2011)作答。
A A、2
B B、3
C C、5
D D、7
正确答案
C
查看解析
搜索
相关试题
刷题小程序
热门试卷