首页
考研
最新考研题库
中外美术史23新版
建筑类
二级建造师
一级建造师
一级造价工程师
监理工程师
安全工程师
一级消防工程师
消防设施操作员
医学类
主治类
执业药师
护师(初级)资格证考试
主管护师(中级)资格证考试
护士资格证考试
医师类
中药学类
金融类
基金从业资格
银行从业资格
证券从业资格
期货从业资格
银行招聘考试
财会类
初级经济师
中级经济师
初级会计师
中级会计师
注册会计师
税务师
资产评估师
教师类
中学教师笔试
小学教师笔试
幼儿教师笔试
幼儿结构化面试
幼儿专业面试
中小学结构化面试
学历提升
成考(专升本)
成考(高起本、高起专)
自考
网校课程
登录
注册好礼
我的主页
我的提问
我的回答
退出
当前位置:
首页
>
(结构) 专业考试一级
>
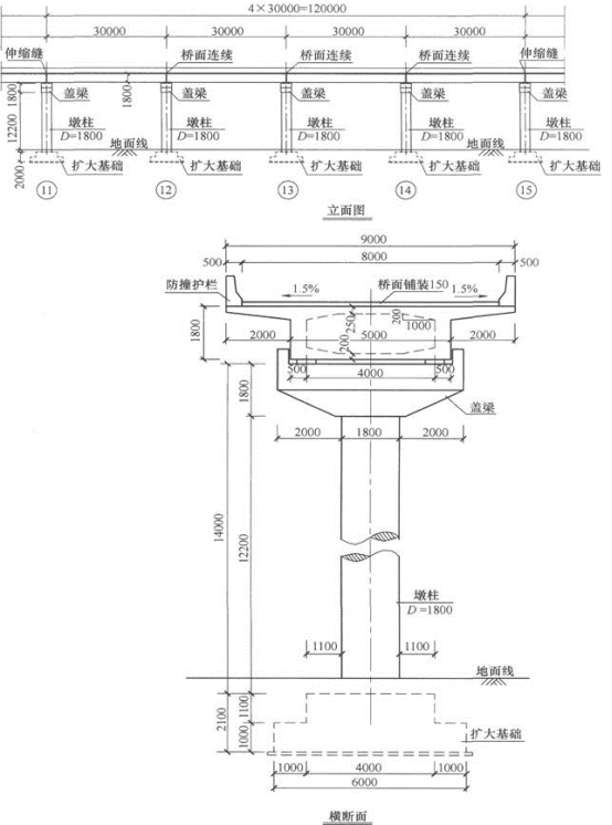
某城市快速路上的一座立交匝道桥,其中一段为四孔各30m的简支梁桥,其总体布置如图所示。单向双车道,桥梁总宽9.0m,其中
单选
某城市快速路上的一座立交匝道桥,其中一段为四孔各30m的简支梁桥,其总体布置如图所示。单向双车道,桥梁总宽9.0m,其中行车道净宽度为8.0m。上部结构采用预应力混凝土箱梁(桥面连续),桥墩由扩大基础上的钢筋混凝土圆柱墩身及带悬臂的盖梁组成。梁体混凝土线膨胀系数取α=0.00001。设计荷载:城-A级。
桥型布置图
该桥桥址处地震动峰值加速度为0.15g(相当抗震设防烈度7度)。试问,该桥应选用下列何类抗震设计方法?( )
A A类
B B类
C C类
D D类
正确答案
A
查看解析
搜索
相关试题
刷题小程序
热门试卷