首页
考研
最新考研题库
中外美术史23新版
建筑类
二级建造师
一级建造师
一级造价工程师
监理工程师
安全工程师
一级消防工程师
消防设施操作员
医学类
主治类
执业药师
护师(初级)资格证考试
主管护师(中级)资格证考试
护士资格证考试
医师类
中药学类
金融类
基金从业资格
银行从业资格
证券从业资格
期货从业资格
银行招聘考试
财会类
初级经济师
中级经济师
初级会计师
中级会计师
注册会计师
税务师
资产评估师
教师类
中学教师笔试
小学教师笔试
幼儿教师笔试
幼儿结构化面试
幼儿专业面试
中小学结构化面试
学历提升
成考(专升本)
成考(高起本、高起专)
自考
网校课程
登录
注册好礼
我的主页
我的提问
我的回答
退出
当前位置:
首页
>
(结构) 专业考试一级
>
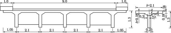
某三跨混凝土简支T形梁桥,计算跨径L=19.5m,主梁之间采用现浇湿接头刚性连接。桥梁横向布置和主梁截面尺寸如图所示,车
单选
某三跨混凝土简支T形梁桥,计算跨径L=19.5m,主梁之间采用现浇湿接头刚性连接。桥梁横向布置和主梁截面尺寸如图所示,车道设计荷载采用公路-Ⅰ级。主梁采用C30混凝土预制,重力密度为25kN/m^3,fcd=13.8MPa,ftd=1.39MPa。钢筋采用HRB335级,fsd=280MPa,结构重要性系数γ0=1.0。
若主梁截面下缘全部受弯钢筋截面重心距截面下缘的距离as=70mm,根据承载能力极限状态计算得支点剪力为720kN,则该主梁在支点处断面的腹板宽度最接近于( )m。
A 0.18
B 0.19
C 0.21
D 0.24
正确答案
C
查看解析
搜索
相关试题
刷题小程序
热门试卷