首页
考研
最新考研题库
中外美术史23新版
建筑类
二级建造师
一级建造师
一级造价工程师
监理工程师
安全工程师
一级消防工程师
消防设施操作员
医学类
主治类
执业药师
护师(初级)资格证考试
主管护师(中级)资格证考试
护士资格证考试
医师类
中药学类
金融类
基金从业资格
银行从业资格
证券从业资格
期货从业资格
银行招聘考试
财会类
初级经济师
中级经济师
初级会计师
中级会计师
注册会计师
税务师
资产评估师
教师类
中学教师笔试
小学教师笔试
幼儿教师笔试
幼儿结构化面试
幼儿专业面试
中小学结构化面试
学历提升
成考(专升本)
成考(高起本、高起专)
自考
网校课程
登录
注册好礼
我的主页
我的提问
我的回答
退出
当前位置:
首页
>
(结构) 专业考试一级
>
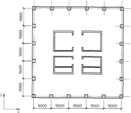
某38层现浇钢筋混凝土框架核心筒结构,普通办公楼,如图所示,房屋高度为160m,1~4层层高6.0m,5~38层层高4.
单选
某38层现浇钢筋混凝土框架核心筒结构,普通办公楼,如图所示,房屋高度为160m,1~4层层高6.0m,5~38层层高4.0m。抗震设防烈度为7度(0.10g),抗震设防类别为标准设防类,无薄弱层。
假定,楼盖结构方案调整后,重力荷载代表值为1×10^6kN,底部地震总剪力标准值为12500kN,基本周期为4.3s。多遇地震标准值作用下,Y向框架部分分配的剪力与结构总剪力比例如图所示。对应于地震作用标准值,Y向框架部分按侧向刚度分配且未经调整的楼层地震剪力标准值:首层V=600kN;各层最大值Vf,max=2000kN。试问,抗震设计时,首层Y向框架部分按侧向刚度分配的楼层地震剪力标准值(kN),与下列何项数值最为接近?( )
A 2500
B 2800
C 3000
D 3300
正确答案
B
查看解析
搜索
相关试题
刷题小程序
热门试卷