首页
考研
最新考研题库
中外美术史23新版
建筑类
二级建造师
一级建造师
一级造价工程师
监理工程师
安全工程师
一级消防工程师
消防设施操作员
医学类
主治类
执业药师
护师(初级)资格证考试
主管护师(中级)资格证考试
护士资格证考试
医师类
中药学类
金融类
基金从业资格
银行从业资格
证券从业资格
期货从业资格
银行招聘考试
财会类
初级经济师
中级经济师
初级会计师
中级会计师
注册会计师
税务师
资产评估师
教师类
中学教师笔试
小学教师笔试
幼儿教师笔试
幼儿结构化面试
幼儿专业面试
中小学结构化面试
学历提升
成考(专升本)
成考(高起本、高起专)
自考
网校课程
登录
注册好礼
我的主页
我的提问
我的回答
退出
当前位置:
首页
>
(结构) 专业考试一级
>
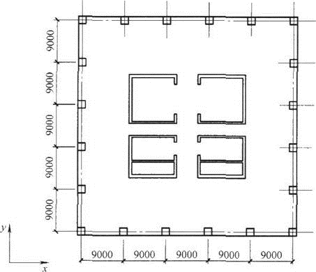
某38层现浇钢筋混凝土框架核心筒结构,普通办公楼,如图所示,房屋高度为160m,1~4层层高6.0m,5~38层层高4.
单选
某38层现浇钢筋混凝土框架核心筒结构,普通办公楼,如图所示,房屋高度为160m,1~4层层高6.0m,5~38层层高4.0m。抗震设防烈度为7度(0.10g),抗震设防类别为标准设防类,无薄弱层。
假定,主体结构抗震性能目标定为C级,抗震性能设计时,在设防烈度地震作用下,主要构件的抗震性能指标有下列4组,如表~表所示。试问,设防烈度地震作用下构件抗震性能设计时,采用哪一组符合《高层建筑混凝土结构技术规程》(JGJ 3—2010)的基本要求?( )
注:构件承载力满足弹性设计要求简称“弹性”;满足屈服承载力要求简称“不屈服”。
表 结构主要构件的抗震性能指标A
表 结构主要构件的抗震性能指标B
表 结构主要构件的抗震性能指标C
表 结构主要构件的抗震性能指标D
A 表
B 表
C 表
D 表
正确答案
B
查看解析
搜索
相关试题
刷题小程序
热门试卷