首页
考研
最新考研题库
中外美术史23新版
建筑类
二级建造师
一级建造师
一级造价工程师
监理工程师
安全工程师
一级消防工程师
消防设施操作员
医学类
主治类
执业药师
护师(初级)资格证考试
主管护师(中级)资格证考试
护士资格证考试
医师类
中药学类
金融类
基金从业资格
银行从业资格
证券从业资格
期货从业资格
银行招聘考试
财会类
初级经济师
中级经济师
初级会计师
中级会计师
注册会计师
税务师
资产评估师
教师类
中学教师笔试
小学教师笔试
幼儿教师笔试
幼儿结构化面试
幼儿专业面试
中小学结构化面试
学历提升
成考(专升本)
成考(高起本、高起专)
自考
网校课程
登录
注册好礼
我的主页
我的提问
我的回答
退出
当前位置:
首页
>
(结构) 专业考试一级
>
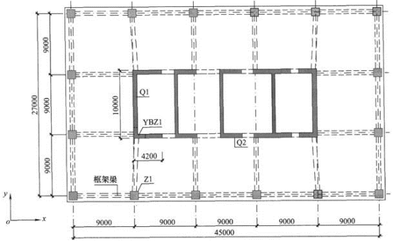
某地上38层的现浇钢筋混凝土框架-核心筒办公楼,如图所示,房屋高度为155.4m,该建筑地上第1层至地上第4层的层高均为
单选
某地上38层的现浇钢筋混凝土框架-核心筒办公楼,如图所示,房屋高度为155.4m,该建筑地上第1层至地上第4层的层高均为5.1m,第24层的层高6m,其余楼层的层高均为3.9m。抗震设防烈度7度,设计基本地震加速度0.10g,设计地震分组第一组,建筑场地类别为Ⅱ类,抗震设防类别为丙类,安全等级二级。
假定,第3层核心筒墙肢Q1在Y向水平地震作用按《高规》第9.1.11条调整后的剪力标准值VEhk=1900kN,Y向风荷载作用下剪力标准值Vwk=1400kN。试问,该片墙肢考虑地震作用组合的剪力设计值V(kN),与下列何项数值最为接近?( )
提示:忽略墙肢在重力荷载代表值及竖向地震作用下的剪力。
A 2900
B 4000
C 4600
D 5000
正确答案
C
查看解析
搜索
相关试题
刷题小程序
热门试卷