首页
考研
最新考研题库
中外美术史23新版
建筑类
二级建造师
一级建造师
一级造价工程师
监理工程师
安全工程师
一级消防工程师
消防设施操作员
医学类
主治类
执业药师
护师(初级)资格证考试
主管护师(中级)资格证考试
护士资格证考试
医师类
中药学类
金融类
基金从业资格
银行从业资格
证券从业资格
期货从业资格
银行招聘考试
财会类
初级经济师
中级经济师
初级会计师
中级会计师
注册会计师
税务师
资产评估师
教师类
中学教师笔试
小学教师笔试
幼儿教师笔试
幼儿结构化面试
幼儿专业面试
中小学结构化面试
学历提升
成考(专升本)
成考(高起本、高起专)
自考
网校课程
登录
注册好礼
我的主页
我的提问
我的回答
退出
当前位置:
首页
>
(结构) 专业考试一级
>
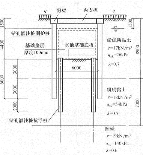
某地下水池采用钢筋混凝土结构,平面尺寸6m×12m,基坑支护采用直径600mm钻孔灌注桩结合一道钢筋混凝土内支撑联合挡土
单选
某地下水池采用钢筋混凝土结构,平面尺寸6m×12m,基坑支护采用直径600mm钻孔灌注桩结合一道钢筋混凝土内支撑联合挡土,地下结构平面、剖面及土层分布如图所示,土的饱和重度按天然重度采用。
提示:不考虑主动土压力增大系数。
(a)平面图
(b)1—1剖面图图
假定,坑底以下淤泥质黏土的回弹模量为10MPa。试问,根据《建筑地基基础设计规范》(GB 50007—2011),基坑开挖至底部后,坑底中心部位由淤泥质黏土层回弹产生的变形量sc(mm),与下述何项数值最为接近?( )
提示:①坑底以下的淤泥质黏土层按一层计算,计算时不考虑工程桩及周边围护桩的有利作用;②回弹量计算的经验系数ψc取1.0。
A 8
B 16
C 25
D 40
正确答案
B
查看解析
搜索
相关试题
刷题小程序
热门试卷