首页
考研
最新考研题库
中外美术史23新版
建筑类
二级建造师
一级建造师
一级造价工程师
监理工程师
安全工程师
一级消防工程师
消防设施操作员
医学类
主治类
执业药师
护师(初级)资格证考试
主管护师(中级)资格证考试
护士资格证考试
医师类
中药学类
金融类
基金从业资格
银行从业资格
证券从业资格
期货从业资格
银行招聘考试
财会类
初级经济师
中级经济师
初级会计师
中级会计师
注册会计师
税务师
资产评估师
教师类
中学教师笔试
小学教师笔试
幼儿教师笔试
幼儿结构化面试
幼儿专业面试
中小学结构化面试
学历提升
成考(专升本)
成考(高起本、高起专)
自考
网校课程
登录
注册好礼
我的主页
我的提问
我的回答
退出
当前位置:
首页
>
(结构) 专业考试一级
>
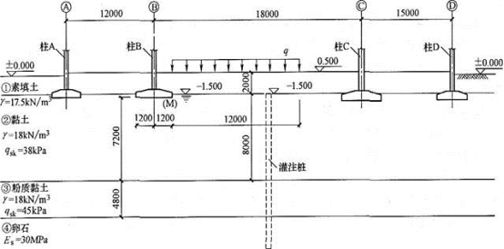
某三跨单层工业厂房,采用柱顶铰接的排架结构,纵向柱距为12m,厂房每跨均设有桥式吊车,且在使用期间轨道没有条件调整。在初
单选
某三跨单层工业厂房,采用柱顶铰接的排架结构,纵向柱距为12m,厂房每跨均设有桥式吊车,且在使用期间轨道没有条件调整。在初步设计阶段,基础拟采用浅基础。场地地下水位标高为-1.5m。厂房的横剖面、场地土分层情况如图所示。
假定,②层黏土压缩系数a1-2=0.51MPa
-1
。初步确定柱基础的尺寸时,计算得到柱A、B、C、D基础底面中心的最终地基变形量分别为:sA=50mm、sB=90mm、sC=120rnm、sD=85mm。试问,根据《建筑地基基础设计规范》(GB 50007—2011)的规定,关于地基变形的计算结果,下列何项的说法是正确的?( )
A 3跨都不满足规范要求
B A—B跨满足规范要求
C B—C、C—D跨满足规范要求
D 3跨都满足规范要求
正确答案
C
查看解析
搜索
相关试题
刷题小程序
热门试卷