首页
考研
最新考研题库
中外美术史23新版
建筑类
二级建造师
一级建造师
一级造价工程师
监理工程师
安全工程师
一级消防工程师
消防设施操作员
医学类
主治类
执业药师
护师(初级)资格证考试
主管护师(中级)资格证考试
护士资格证考试
医师类
中药学类
金融类
基金从业资格
银行从业资格
证券从业资格
期货从业资格
银行招聘考试
财会类
初级经济师
中级经济师
初级会计师
中级会计师
注册会计师
税务师
资产评估师
教师类
中学教师笔试
小学教师笔试
幼儿教师笔试
幼儿结构化面试
幼儿专业面试
中小学结构化面试
学历提升
成考(专升本)
成考(高起本、高起专)
自考
网校课程
登录
注册好礼
我的主页
我的提问
我的回答
退出
当前位置:
首页
>
(结构) 专业考试一级
>
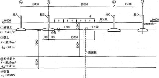
某三跨单层工业厂房,采用柱顶铰接的排架结构,纵向柱距为12m,厂房每跨均设有桥式吊车,且在使用期间轨道没有条件调整。在初
单选
某三跨单层工业厂房,采用柱顶铰接的排架结构,纵向柱距为12m,厂房每跨均设有桥式吊车,且在使用期间轨道没有条件调整。在初步设计阶段,基础拟采用浅基础。场地地下水位标高为-1.5m。厂房的横剖面、场地土分层情况如图所示。
假定,根据生产要求,在B—C跨有大面积的堆载,如图所示。对堆载进行换算,作用在基础底面标高的等效荷载qeq=45kPa,堆载宽度12m,纵向长度为24mm。②层黏土相应于土的自重压力至土的自重压力与附加压力之和的压力段的Es=4.8MPa,③层粉质黏土相应于土的自重压力至土的自重压力与附加压力之和的压力段的Es=7.5MPa。试问,当沉降计算经验系数ψs=1,对②层及③层土,大面积堆载对柱B基础底面内侧中心M的附加沉降值sM(mm),与下列何项数值最为接近?( )
A 25
B 35
C 45
D 60
正确答案
C
查看解析
搜索
相关试题
刷题小程序
热门试卷