首页
考研
最新考研题库
中外美术史23新版
建筑类
二级建造师
一级建造师
一级造价工程师
监理工程师
安全工程师
一级消防工程师
消防设施操作员
医学类
主治类
执业药师
护师(初级)资格证考试
主管护师(中级)资格证考试
护士资格证考试
医师类
中药学类
金融类
基金从业资格
银行从业资格
证券从业资格
期货从业资格
银行招聘考试
财会类
初级经济师
中级经济师
初级会计师
中级会计师
注册会计师
税务师
资产评估师
教师类
中学教师笔试
小学教师笔试
幼儿教师笔试
幼儿结构化面试
幼儿专业面试
中小学结构化面试
学历提升
成考(专升本)
成考(高起本、高起专)
自考
网校课程
登录
注册好礼
我的主页
我的提问
我的回答
退出
当前位置:
首页
>
(结构) 专业考试一级
>
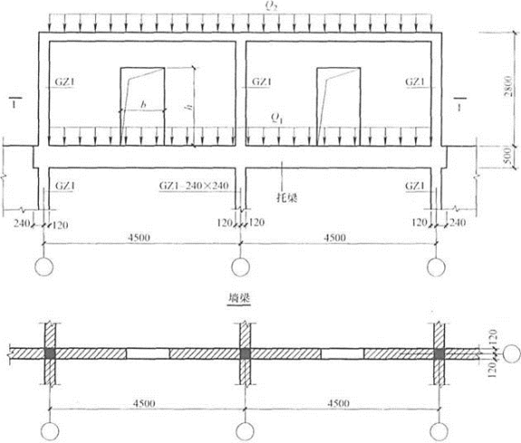
非抗震设计时,某顶层两跨连续墙梁,支承在下层的砌体墙上,如图所示。墙体厚度为240mm,墙梁洞口居墙梁跨中布置,洞口尺寸
单选
非抗震设计时,某顶层两跨连续墙梁,支承在下层的砌体墙上,如图所示。墙体厚度为240mm,墙梁洞口居墙梁跨中布置,洞口尺寸为b×h(mm×mm)。托梁截面尺寸为240mm×500mm。使用阶段墙梁上的荷载分别为托梁顶面的荷载设计值Q1和墙梁顶面的荷载设计值Q2。GZ1为墙体中设置的钢筋混凝土构造柱,墙梁的构造措施满足规范要求。
关于本题的墙梁设计,试问,下列说法中何项正确?( )
Ⅰ.对使用阶段墙体的受剪承载力、托梁支座上部砌体局部受压承载力,可不必验算;
Ⅱ.墙梁洞口上方可设置钢筋砖过梁,其底面砂浆层处的钢筋伸入支座砌体内的长度不应小于240mm;
Ⅲ.托梁上部通长布置的纵向钢筋面积为跨中下部纵向钢筋面积的50%;
Ⅳ.墙体采用MU15级蒸压粉煤灰普通砖、Ms7.5级专用砌筑砂浆砌筑,在不加设临时支撑的情况下,每天砌筑高度不超过1.5m。
A Ⅰ、Ⅱ正确
B Ⅰ、Ⅲ正确
C Ⅱ、Ⅲ正确
D Ⅱ、Ⅳ正确
正确答案
B
查看解析
搜索
相关试题
刷题小程序
热门试卷