首页
考研
最新考研题库
中外美术史23新版
建筑类
二级建造师
一级建造师
一级造价工程师
监理工程师
安全工程师
一级消防工程师
消防设施操作员
医学类
主治类
执业药师
护师(初级)资格证考试
主管护师(中级)资格证考试
护士资格证考试
医师类
中药学类
金融类
基金从业资格
银行从业资格
证券从业资格
期货从业资格
银行招聘考试
财会类
初级经济师
中级经济师
初级会计师
中级会计师
注册会计师
税务师
资产评估师
教师类
中学教师笔试
小学教师笔试
幼儿教师笔试
幼儿结构化面试
幼儿专业面试
中小学结构化面试
学历提升
成考(专升本)
成考(高起本、高起专)
自考
网校课程
登录
注册好礼
我的主页
我的提问
我的回答
退出
当前位置:
首页
>
(结构) 专业考试一级
>
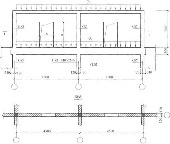
非抗震设计时,某顶层两跨连续墙梁,支承在下层的砌体墙上,如图所示。墙体厚度为240mm,墙梁洞口居墙梁跨中布置,洞口尺寸
单选
非抗震设计时,某顶层两跨连续墙梁,支承在下层的砌体墙上,如图所示。墙体厚度为240mm,墙梁洞口居墙梁跨中布置,洞口尺寸为b×h(mm×mm)。托梁截面尺寸为240mm×500mm。使用阶段墙梁上的荷载分别为托梁顶面的荷载设计值Q1和墙梁顶面的荷载设计值Q2。GZ1为墙体中设置的钢筋混凝土构造柱,墙梁的构造措施满足规范要求。
试问,最大洞口尺寸b×h(mm×mm),与下列何项数值最为接近?( )
A 1200×2200
B 1300×2300
C 1400×2400
D 1500×2400
正确答案
B
查看解析
搜索
相关试题
刷题小程序
热门试卷