首页
考研
最新考研题库
中外美术史23新版
建筑类
二级建造师
一级建造师
一级造价工程师
监理工程师
安全工程师
一级消防工程师
消防设施操作员
医学类
主治类
执业药师
护师(初级)资格证考试
主管护师(中级)资格证考试
护士资格证考试
医师类
中药学类
金融类
基金从业资格
银行从业资格
证券从业资格
期货从业资格
银行招聘考试
财会类
初级经济师
中级经济师
初级会计师
中级会计师
注册会计师
税务师
资产评估师
教师类
中学教师笔试
小学教师笔试
幼儿教师笔试
幼儿结构化面试
幼儿专业面试
中小学结构化面试
学历提升
成考(专升本)
成考(高起本、高起专)
自考
网校课程
登录
注册好礼
我的主页
我的提问
我的回答
退出
当前位置:
首页
>
(结构) 专业考试一级
>
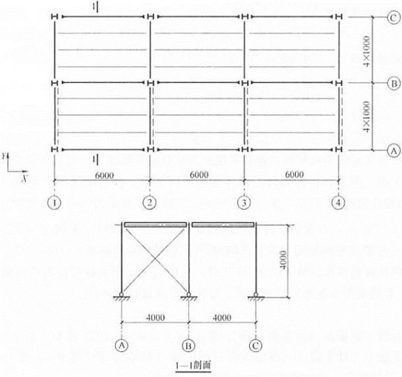
某非抗震设计的单层钢结构平台,钢材均为Q235B,梁柱均采用轧制H型钢,X向采用梁柱刚接的框架结构,Y向采用梁柱铰接的支
单选
某非抗震设计的单层钢结构平台,钢材均为Q235B,梁柱均采用轧制H型钢,X向采用梁柱刚接的框架结构,Y向采用梁柱铰接的支撑结构,平行满铺t=6mm的花纹钢板,见图。假定,平台自重(含梁自重)折算为1kN/m^2(标准值),活荷载为4kN/m^2(标准值),梁均采用H300×150×6.5×9,柱均采用H250×250×9×14,所有截面均无削弱。不考虑楼板对梁的影响。
图截面特性:
假定,内力计算采用一阶弹性分析,柱脚铰接,取K2=0。试问,②轴柱X向平面内计算长度系数,与下列何项数值最为接近?( )
A 0.9
B 1.0
C 2.4
D 2.7
正确答案
C
查看解析
搜索
相关试题
刷题小程序
热门试卷