首页
考研
最新考研题库
中外美术史23新版
建筑类
二级建造师
一级建造师
一级造价工程师
监理工程师
安全工程师
一级消防工程师
消防设施操作员
医学类
主治类
执业药师
护师(初级)资格证考试
主管护师(中级)资格证考试
护士资格证考试
医师类
中药学类
金融类
基金从业资格
银行从业资格
证券从业资格
期货从业资格
银行招聘考试
财会类
初级经济师
中级经济师
初级会计师
中级会计师
注册会计师
税务师
资产评估师
教师类
中学教师笔试
小学教师笔试
幼儿教师笔试
幼儿结构化面试
幼儿专业面试
中小学结构化面试
学历提升
成考(专升本)
成考(高起本、高起专)
自考
网校课程
登录
注册好礼
我的主页
我的提问
我的回答
退出
当前位置:
首页
>
(结构) 专业考试一级
>
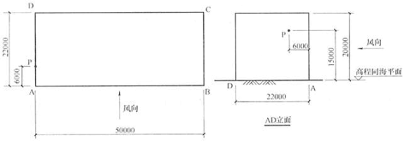
某海岛临海建筑,为封闭式矩形平面房屋,外墙采用单层幕墙,其平面和立面如图所示,P点位于墙面AD上,距海平面高度15m。假
单选
某海岛临海建筑,为封闭式矩形平面房屋,外墙采用单层幕墙,其平面和立面如图所示,P点位于墙面AD上,距海平面高度15m。假定,基本风压ω0=1.3kN/m^2,墙面AD的围护构件直接承受风荷载。试问,在图风向情况下,当计算墙面AD围护构件风荷载时,P点处垂直于墙面的风荷载标准值的绝对值ωk(kN/m^2),与下列何项数值最为接近?( )
提示:
①按《建筑结构荷载规范》(GB 50009—2012)作答,海岛的修正系数η=1.0;
②需同时考虑建筑物墙面的内外压力。
A 2.9
B 3.5
C 4.1
D 4.6
正确答案
D
查看解析
搜索
相关试题
刷题小程序
热门试卷