首页
考研
最新考研题库
中外美术史23新版
建筑类
二级建造师
一级建造师
一级造价工程师
监理工程师
安全工程师
一级消防工程师
消防设施操作员
医学类
主治类
执业药师
护师(初级)资格证考试
主管护师(中级)资格证考试
护士资格证考试
医师类
中药学类
金融类
基金从业资格
银行从业资格
证券从业资格
期货从业资格
银行招聘考试
财会类
初级经济师
中级经济师
初级会计师
中级会计师
注册会计师
税务师
资产评估师
教师类
中学教师笔试
小学教师笔试
幼儿教师笔试
幼儿结构化面试
幼儿专业面试
中小学结构化面试
学历提升
成考(专升本)
成考(高起本、高起专)
自考
网校课程
登录
注册好礼
我的主页
我的提问
我的回答
退出
当前位置:
首页
>
(结构) 专业考试一级
>
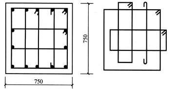
单选题 有一建造于Ⅱ类场地上的钢筋混凝土多层框架,抗震等级为二级,其中某柱的轴压比为0.7,混凝土强度等级为C30,箍筋
单选
单选题 有一建造于Ⅱ类场地上的钢筋混凝土多层框架,抗震等级为二级,其中某柱的轴压比为0.7,混凝土强度等级为C30,箍筋采用HPB235,保护层厚度取25mm,剪跨比为2.1,柱断面尺寸及配筋形式如图所示。
下列箍筋的配筋,最接近于加密区最小体积配箍率要求的是?( )
A A
B B
C C
D D
E E
正确答案
D
查看解析
搜索
相关试题
单选
在下列各种情况下,砌体强度设计值乘以小于1的调整系数的是?( )
A A、A<0、3m2或用水泥砂浆砌筑时 B B、A>0、3m2及用混合砂浆砌筑时 C C、当构件所处的位置较重要时 D D、当块体或砂浆强度较低时
查看
单选
某建筑物如图13所示。墙体采用MU10普通砌砖,M5混合砂浆砌筑,纵墙厚度为370mm。山墙及底层每隔三开间有道横墙,厚度240mm,二层为全空旷房间(无内横墙
A A、当B=2000mm时,符合条件 B B、当B=2500mm时,符合条件 C C、当B=3000mm时,不符合条件 D D、当B=3000mm时,有可能符合条件
查看
单选
假定二层山墙满足刚弹性房屋横墙的构造要求,下列对二层屋面空间性能影响系数η2值的确定,其中何项是正确的?( )
A A、不能考虑空间性能影响系数 B B、η2=0、39 C C、η2=0、81 D D、η2=0、68
查看
单选
屋架在风荷载作用下,每榀屋架下弦产生的柱顶集中力设计值PW,与下列何项数值最为接近?( )
A A、0、89kN B B、1、25kN C C、1、84kN D D、3、49kN
查看
单选
在风荷载作用下,作用在排架上的荷载如图14所示,已知作用在每个计算单元上的集中力W=1.4×1.31=1.83kN(设计值)。在A轴线二层楼面处,由风荷载如题5
A A、-10、83kN·m B B、-6、03kN·m C C、-7、74kN·m D D、-15、93kN·m
查看
单选
底层纵墙设高窗,过梁上的荷载及窗如图15所示。过梁端部所承受的外荷载(不含梁自重)产生的最大剪力设计值为?( )
A A、20、3kN B B、19、4kN C C、18、0kN D D、17、2kN
查看
单选
某建筑物中部屋面等截面挑梁L(240mm×300mm),如图17所示。屋面板传来活荷载标准值Pk=6.4kN/m,设计值P=8.96kN/m,屋面板传来静荷载和
A A、l1>2、76m B B、l1>2、27m C C、l1≥2、76m D D、l1≥2、27m
查看
单选
墙体采用MU10蒸压粉煤灰砖、M5砂浆砌筑,砌体施工质量控制等级为B级。试问,L梁下局部受压承载力验算结果(N1≤ηγfA1),其左右端数值,与下列何项最为接近
A A、41、4kN<136、08kN B B、73、8kN<136、08kN C C、82、8kN<108、86kN D D、82、8kN<136、08kN
查看
单选
对局部软弱土层以及暗塘、暗沟等,可采用下列何方法处理?( )
A A、换土垫层法 B B、夯实法 C C、排水固结法 D D、振动压实法
查看
单选
墙下条形基础及地基土剖面如图18所示,墙宽400mm,基础混凝土强度等级为C20,基础埋置深度2m,持力层厚度3m,基础自重和基础台阶上土重的平均重度为20kN
A A、孔隙比最接近于0、80 B B、孔隙比最接近于0、85 C C、孔隙比最接近于1、10 D D、孔隙比最接近于0、95
查看
刷题小程序
热门试卷
一级注册结构工程师《 专业考试》模拟卷1
一级注册结构工程师《 专业考试》模拟卷2
一级注册结构工程师《 专业考试》模拟卷3
一级注册结构工程师《 专业考试》模拟卷4
一级注册结构工程师《 专业考试》模拟卷5
一级注册结构工程师《 专业考试》预测卷1
一级注册结构工程师《 专业考试》预测卷2
一级注册结构工程师《 专业考试》预测卷3
一级注册结构工程师《 专业考试》预测卷4