单选

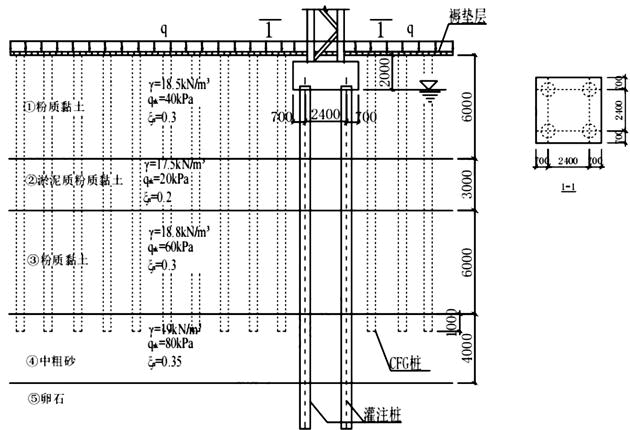
不定项选择题 某仓库安全等级为二级,长250m,宽200m,地面大面积堆载,根据当地工程经验,地基处理采用长螺旋钻孔压灌成形的CFG桩,桩直径400mm,桩体试块(边长150mm立方体)标准养护28d的立方体抗压强度平均值为15MPa,等边三角形布桩,①层土顶标高作为桩顶标高,桩顶设置砂石褥垫层,褥垫层的承载力满足堆载要求,地面堆载标准值为250kPa(已计入褥垫层及地坪做法等增加的重力荷载)地基条件如图所示。原场地自然地面平坦,且处于正常固结状态。

假定,CFG挖桩长16m,原场地地基处理及大面积堆载前已处于正常固结状态,厂房内某中间挖需要严格控制沉降,采用4根直径700mm的灌注桩,桩端进入卵石层,桩基础的布置、地基处理后侧土的极限侧阻力标准值如图所示。试问,初步设计中考虑地面堆载影响进行灌注桩负摩阻力计算时,依据《建筑桩基技术规范》(JGJ 94—2008)提供的算法,负摩阻力群桩效应系数ηn,与下列何项最为接近?( )
提示:①⑤层卵石以上土层均按软弱土层考虑;
②桩周土层计算沉降量大于20mm。

A 0.4
B 0.60
C 0.80
D 1.00

正确答案
A
查看解析

相关试题

单选
不定项选择题 关于地基基础检验与监测的下列各项说法,有几项符合《建筑地基基础设计规范》(GB 50007—2011)的规定?( ) Ⅰ.基桩验收检验静载荷试验最
B 1 C 2 D 3
查看
单选
不定项选择题 关于地基基础设计的下列各项说法,有几项符合《建筑地基基础设计规范》(GB 50007—2011)规定?( ) Ⅰ.C15毛石混凝土基础,相应于作用
B 1 C 2 D 3
查看
单选
不定项选择题 关于高层混凝土结构抗震性能化设计,下列各项说法与《建筑抗震设计规范》(GB 50011—2010)(2010年版)的规定不符?( ) Ⅰ.抗震性能
A Ⅰ、Ⅱ不符合 B Ⅰ、Ⅲ符合 C Ⅱ、Ⅳ不符合 D 全不符合
查看
单选
不定项选择题 关于高层民用建筑混凝土结构,下列何项说法与《高层建筑混凝土结构技术规程》(JGJ 3—2010)的规定不符?( )
A 对于框架结构,影响结构层间弹塑性位移角限值[θp]的因素有很多,其中轴压比和配箍率是两个重要的影响因素 B 结构扭转位移比计算应采用“规定水平地震力”,且应考虑偶然偏心影响;楼层层间最大水平位移与层高之比计算时,应采用地震作用标准值,可不考虑偶然偏心影响 C 验算弹性层间位移角(Δu/h)是否满足限值要求时,第i层最大层间位移Δui是指第i层与第i-1层在楼层平面各处水平位移的最大值之差 D 重点设防类高层建筑应按高于本地区抗震设防烈度一度的要求加强其抗震措施,但抗震设防烈度为9度时按比9度更高的要求采取抗震措施;标准设防类高层建筑,当建筑场地为Ⅰ类时,应允许比本地区抗震设防烈度降低一度的要求采取抗震构造措施,但6度时不应降低
查看
单选
不定项选择题 某12层钢筋混凝土框架结构,质量、侧向刚度沿竖向分布可视为均匀,首层层高5米,其余各层为4米,各层重力荷载设计值之和为∑Gj=4×10^5kN,该
A 1 B 1.1 C 1.2 D 1.3
查看
单选
不定项选择题 某38层现浇框架-核心筒高层办公楼,标准设防类,安全等级一级,如图所示。内筒为钢筋混凝土筒体,外框柱采用型钢混凝土柱,楼面梁为钢筋混凝土梁,房屋高
A 16<img border="0" alt="" src="https://tuku.weimei168.com/uploads/upimg/20251103/22417325_0_2.png">25,<img border="0" alt="" src="https://tuku.weimei168.com/uploads/upimg/20251103/22417325_0_3.png">10@100 B 16<img border="0" alt="" src="https://tuku.weimei168.com/uploads/upimg/20251103/22417325_0_4.png">25,<img border="0" alt="" src="https://tuku.weimei168.com/uploads/upimg/20251103/22417325_0_5.png">12@100 C 16<img border="0" alt="" src="https://tuku.weimei168.com/uploads/upimg/20251103/22417325_0_6.png">22,<img border="0" alt="" src="https://tuku.weimei168.com/uploads/upimg/20251103/22417325_0_7.png">10@100 D 16<img border="0" alt="" src="https://tuku.weimei168.com/uploads/upimg/20251103/22417325_0_8.png">22,<img border="0" alt="" src="https://tuku.weimei168.com/uploads/upimg/20251103/22417325_0_9.png">12@100
查看
单选
不定项选择题 某38层现浇框架-核心筒高层办公楼,标准设防类,安全等级一级,如图所示。内筒为钢筋混凝土筒体,外框柱采用型钢混凝土柱,楼面梁为钢筋混凝土梁,房屋高
A 1/140 B 1/160 C 1/170 D 1/180
查看
单选
不定项选择题 某38层现浇框架-核心筒高层办公楼,标准设防类,安全等级一级,如图所示。内筒为钢筋混凝土筒体,外框柱采用型钢混凝土柱,楼面梁为钢筋混凝土梁,房屋高
A 1280kN·m B 1360kN·m C 1400kN·m D 1500kN·m
查看
单选
不定项选择题 某38层现浇框架-核心筒高层办公楼,标准设防类,安全等级一级,如图所示。内筒为钢筋混凝土筒体,外框柱采用型钢混凝土柱,楼面梁为钢筋混凝土梁,房屋高
A 框架二级,核心筒二级 B 框架一级,核心筒二级 C 框架特一级,核心筒一级 D 框架一级,核心筒特一级
查看
单选
不定项选择题 某38层现浇框架-核心筒高层办公楼,标准设防类,安全等级一级,如图所示。内筒为钢筋混凝土筒体,外框柱采用型钢混凝土柱,楼面梁为钢筋混凝土梁,房屋高
A 选项(A) B 选项(B) C 选项(C) D 选项(D)
查看
刷题小程序
(结构) 专业考试一级题库小程序