单选

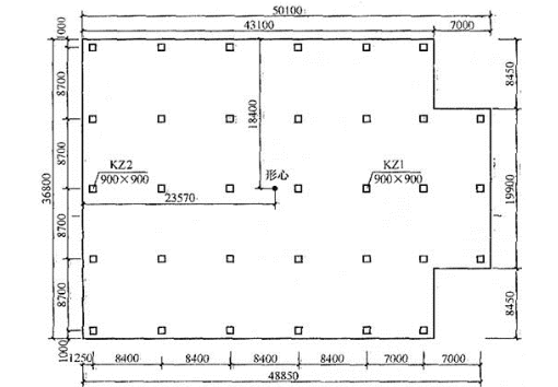
不定项选择题 某安全等级为二级的高层建筑采用钢筋混凝土框架结构。柱截面尺寸900mm×900mm,如图所示。柱采用平板式筏基,板厚1.4m,均匀地基。荷载效应由永久荷载控制。
提示:计算时取h0=1.34m;荷载组合按简化规则。

在作用的准永久组合下,当结构竖向荷载重心与筏板形心不重合时,试问,根据《建筑地基基础设计规范》(GB 50007—2011),荷载重心左右侧偏离筏板形心的距离限值(m),为以下何项数值?(  )

A 0.710,0.580
B 0.800,0.580
C 0.800,0.710
D 0.880,0.690

正确答案
C
查看解析

相关试题

单选
某工程采用钢管桩基础,钢材为Q345B(fy′=305N/mm2,E=206×103N/mm2),外径d=950mm,锤击沉桩,试问,满足打桩时桩身不出现局部压
A A.7 B B.8 C C.9 D D.10
查看
单选
某抗震等级为一级的6层框架结构,采用直径600mm混凝土灌注桩基础,无地下室,试问,题12图中有几处不符合《建筑地基基础设计规范》(GB 50007—2011)
A A.1 B B.2 C C.3 D D.≥4
查看
单选
下列关于CFG桩复合地基质量检验方法的叙述,何项符合《建筑地基处理技术规范》(JGJ 79—2012)的要求?( ) Ⅰ.应采用静载检验处理后地基承载力 Ⅱ.应
A A.Ⅰ、Ⅲ、Ⅳ、Ⅶ B B.Ⅰ、Ⅲ、Ⅵ、Ⅶ C C.Ⅱ、Ⅲ、Ⅵ、Ⅶ D D.Ⅱ、Ⅲ、Ⅴ、Ⅶ
查看
单选
下列关于高层民用建筑抗震观点,哪一项与规范不一致?( )
A A.高层混凝土框架-剪力墙结构,剪力墙有端柱时,墙体在楼盖处宜设暗梁 B B.高层钢框架-支撑结构,支撑框架所承担地震剪力不应小于总地震剪力的75% C C.高层混凝土结构,位移比计算应采用规定水平地震作用,且考虑偶然偏心影响,楼层层间最大位移与层高之比应采用地震作用标准值,可不考虑偶然偏心 D D.重点设防类高层建筑应按高于本地区抗震设防一度的要求提高其抗震措施,但抗震设防烈度为9度时应适当提高;适度设防类,允许比本地区抗震设防烈度的要求适当降低,但其抗震措施6度时不应降低
查看
单选
下列关于高层建筑结构的一些观点,何项最为准确?( )
A A.对于超长钢筋混凝土结构,温度作用计算时,地下部分与地上部分结构应考虑不同的“温升”、“温降”作用 B B.高度超过60m的高层建筑,结构设计时基本风压应增大10% C C.复杂高层建筑结构应采用弹性时程分析法进行补充计算,关键构件的内力、配筋应与反应谱法的计算结果进行比较,取较大者 D D.抗震设防烈度为8度(0.3g)基本周期3s的竖向不规则结构的薄弱层,多遇地震下水平地震作用计算时,薄弱层的最小水平地震剪力系数不应小于0.048
查看
单选
处于7度区的丙类高层建筑,多遇水平地震标准值作用时,需控制弹性层间位移角,比较下列三种结构体系的弹性层间位移角限值[△u/h]: 体系1,房屋高度为180m的钢
A A.1:1.45:2.71 B B.1:1.2:1.36 C C.1:1.04:1.36 D D.1:1.23:2.71 E
查看
单选
某拟建12层办公楼采用钢支撑-混凝土框架结构,房屋高度为43.3m,框架柱截面700mm×700mm,混凝土强度等级为C50。抗震设防烈度为7度,丙类建筑,II
A A.方案A B B.方案B C C.方案C D D.方案D
查看
单选
某拟建10层普通办公楼,现浇钢筋混凝土框架-剪力墙结构,质量和刚度沿高度分布比较均匀,房屋高度为36.4m,一层地下室,地下室顶板为上部嵌固部位,采用桩基础。本
A A.方案A B B.方案B C C.方案C D D.方案D
查看
单选
某城市主干路上一座跨线桥,跨径组合为30m+40m+30m预应力混凝土连续箱梁桥,桥区地震基本烈度为7度,地震动峰值加速度为0.15g。在确定设计技术标准时,试
A A.1 B B.2 C C.3 D D.4
查看
单选
某桥处于气温区域寒冷地区,当地历年最高日平均温度34℃,历年最低日平均温度-10℃,历年最高温度46℃,历年最低温度为-21℃,该桥为正在建设的3×50m墩梁固
A A.14,23 B B.19,30 C C.31,41 D D.26,36
查看
刷题小程序
(结构) 专业考试一级题库小程序