首页
考研
最新考研题库
中外美术史23新版
建筑类
二级建造师
一级建造师
一级造价工程师
监理工程师
安全工程师
一级消防工程师
消防设施操作员
医学类
主治类
执业药师
护师(初级)资格证考试
主管护师(中级)资格证考试
护士资格证考试
医师类
中药学类
金融类
基金从业资格
银行从业资格
证券从业资格
期货从业资格
银行招聘考试
财会类
初级经济师
中级经济师
初级会计师
中级会计师
注册会计师
税务师
资产评估师
教师类
中学教师笔试
小学教师笔试
幼儿教师笔试
幼儿结构化面试
幼儿专业面试
中小学结构化面试
学历提升
成考(专升本)
成考(高起本、高起专)
自考
网校课程
登录
注册好礼
我的主页
我的提问
我的回答
退出
当前位置:
首页
>
《建筑结构、建筑物理与设备》(知识题)
>
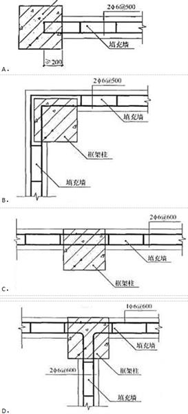
单选题 下列框架柱与填充墙连接图中,构造做法错误的是( )。
单选
单选题 下列框架柱与填充墙连接图中,构造做法错误的是( )。
A A
B B
C C
D D
E E
正确答案
D
查看解析
搜索
相关试题
单选
除对雪荷载敏感的结构外,建筑物基本雪压重现期的取值是( )。
A 100年 B 50年 C 30年 D 10年
查看
单选
赵州桥的结构类型是( )。
A 梁式结构 B 拱式结构 C 框架结构 D 斜拉结构
查看
单选
下列墙体材料中,结构自重最轻、保温隔热性能最好的是( )。
A 石材 B 烧结多孔砖 C 混凝土多孔砖 D 陶粒空心砌块
查看
单选
不能用于地面以下或防潮层以下的墙体材料是( )。
A 烧结普通砖 B 混凝土砌块 C 水泥砂浆 D 石灰砂浆
查看
单选
下列砌体结构教学楼的设计要求中,错误的是( )。
A 在房屋转角处不应设置转角窗 B 抗震墙的布置沿竖向应上下连续 C 楼梯间宜设置在房屋尽端,方便人员疏散 D 宜采用现浇钢筋混凝土楼盖
查看
单选
地震区多层砖砌体房屋中,当采用装配式钢筋混凝土楼盖时,圈梁做法错误的是( )。
A 外墙应每层设置混凝土圈梁 B 内纵墙可隔层设置混凝土圈梁 C 圈梁宜连续地没在同一水平面上,并形成封闭状 D 当门窗顶与圈梁底临近时,圈梁可兼做门窗上方的过梁
查看
单选
下列砌体结构房屋的静力计算方案分类中,正确的是( )。
A 弹性方案、弹塑性方案、塑性方案 B 弹性方案、刚弹性方案、刚性方案 C 弹性方案、塑性方案 D 弹性方案、刚性方案
查看
单选
确定混凝土强度等级的立方体标准试件,其养护龄期应为( )。
A 7天 B 14天 C 21天 D 28天
查看
单选
下列减少受弯构件挠度的措施中,错误的是( )。
A 增大纵向受拉钢筋配筋率 B 提高混凝土强度等级 C 缩短受弯构件跨度 D 降低构件截面高度
查看
单选
不属于抗震重点设防类的建筑是( )。
A 大学宿舍楼 B 小学食堂 C 大型体育馆 D 大型博物馆
查看
刷题小程序
热门试卷
二级建筑师《建筑结构、建筑物理与设备》模拟卷1
二级建筑师《建筑结构、建筑物理与设备》模拟卷2
二级建筑师《建筑结构、建筑物理与设备》模拟卷3
二级建筑师《建筑结构、建筑物理与设备》预测卷1
二级建筑师《建筑结构、建筑物理与设备》预测卷2