分析

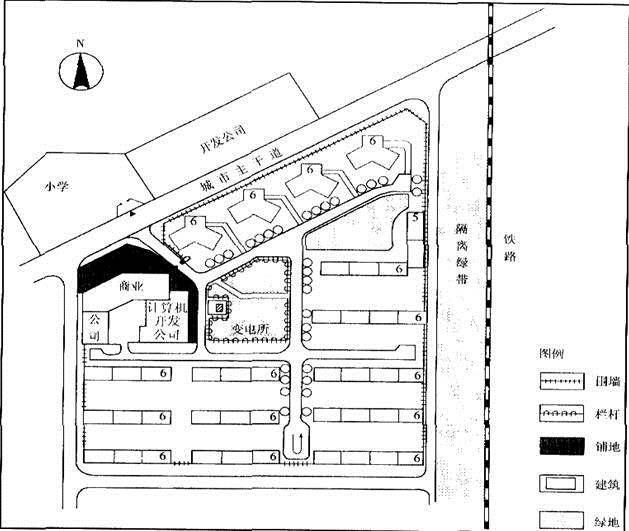
案例题 某居住组团已建成入住,现状示意图如图所示。

图某居住组团现状示意图
【问题】
请指出该居住组团规划在环境、交通及安全方面存在的主要问题。

正确答案
该居住组团规划在环境、交通及安全方面存在的主要问题有:
(1)小学学校位于城市主干道另一侧,且出入口不应开向城市主干道。因家长接送学生带来的人车流集散容易影响城市干道交通,也会对学生安全造成影响。
(2)组团出入口开在主干道上,影响交通和安全。
(3)组团出入口距两侧道路交叉口太近且仅有1个出入口。
(4)变电所位置不合理,对环境有影响。
(5)没有规划停车场用地。
(6)商业及公司的机动车出入口不应开在宅前小路(或小区路)上。
(7)以栏杆环绕组团绿地不利于居民使用,居住区围墙到商业和公司的部分未继续延伸,不利于小区安全。
查看解析

相关试题

刷题小程序
城乡规划实务题库小程序
热门试卷