分析

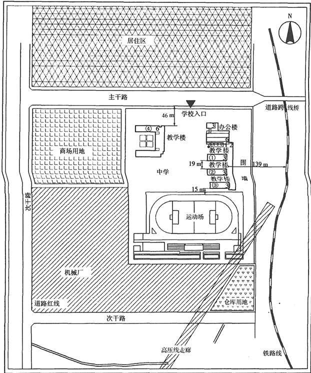
案例题 图所示为某城市一所中学的设计方案示意图。

图某市某所中学规划设计方案示意图
【问题】
请指出学校选址及总平面设计中存在的主要问题。

正确答案
学校选址及总平面设计中存在的主要问题有:
(1)环境选址不当。中小学校严禁建设在地震、地质塌裂、暗河、洪涝等自然灾害及人为风险高的地段和污染超标的地段。校园及校内建筑与污染源的距离应符合对各类污染源实施控制的国家现行有关标准的规定。
(2)校园内不允许有架空高压线通过。高压电线、长输天然气管道、输油管道严禁穿越或跨越学校校园;当在学校周边敷设时,安全防护距离及防护措施应符合相关规定。
(3)主要教学楼层数过高,造成使用不便和安全隐患。教学楼一般不宜超过4层。
(4)学校的出入口不宜开在城市主干道上,无法避免时,学校门前应留出足够的缓行地带,避免交通事故。
(5)④号教学楼距离城市主干道太近,容易受到噪音干扰。主要教学楼外墙与道路同侧路边距离不应小于80m。
(6)①、②、③号教学楼之间的距离过小,③号教学楼距离运动场太近。根据学校设计规范要求,教室长边相对或与运动场之间的间距应不小于25m,以避免噪声干扰。
(7)教学楼与铁路间距不够。主要教学楼用房的外墙与铁路的距离不应小于300m。
(8)运动场长轴方向不宜东西向布置,易造成眩光,影响使用。
查看解析

相关试题

刷题小程序
城乡规划实务题库小程序
热门试卷