分析

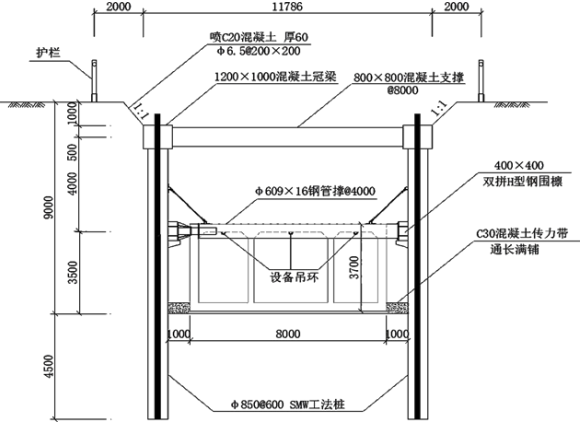
案例题 某公司承建一项城市综合管廊项目,为现浇钢筋混凝土结构,结构外形尺寸3.7m×8.0m,标准段横断面布置有3个舱室。明挖法施工,基坑支护结构采用SMW工法桩+冠梁及第一道钢筋混凝土支撑+第二道钢管撑,基坑支护结构横断面如图4-1所示。

图4-1基坑支护结构横断面示意图(尺寸单位:mm)
项目部编制了基坑支护及开挖专项施工方案,施工工艺流程如下:施工准备→平整场地→测量放线→SMW工法桩施工→冠梁及混凝土支撑施工→第一阶段土方开挖→钢围檩及钢管撑施工→第二阶段土方开挖→清理槽底并验收。专项方案组织专家论证时,专家针对方案提出如下建议:补充钢围檩与支护结构连接细部构造;明确钢管撑拆撑实施条件。
事件一:项目部补充了钢围檩与支护结构连接节点图,如图4-2所示,明确了钢管撑架设及拆除条件,并依据修改后的方案进行基坑开挖施工,在第一阶段土方开挖至钢围檩底下方500mm时,开始架设钢管撑并施加预应力,在监测到支撑轴力有损失时,及时采取相应措施。


图4-2钢围檩与支护结构连接节点示意图(尺寸单位:mm)
事件二:项目部按以下施工工艺流程进行管廊结构施工:
施工准备→垫层施工→底板模板施工→底板钢筋绑扎→底板混凝土浇筑→拆除底板侧模→传力带施工→拆除钢管撑→侧墙及中隔墙钢筋绑扎→侧墙内模及中隔墙模板安装→满堂支架搭设→B→侧墙外模安装→顶板钢筋绑扎→侧墙、中隔墙及顶板混凝土浇筑→模板支架拆除→C→D→土方回填至混凝土支撑以下500mm→拆除混凝土支撑→回填完毕。
事件三:满堂支架采用φ48×3.5mm盘扣式支架,立杆纵、 横向间距均为900mm,步距1200mm,顶托安装完成后,报请监理工程师组织建设、勘察、设计及施工单位技术负责人、项目技术负责人、专项施工方案编制人员及相关人员验收,专业监理工程师指出支架搭设不完整,需补充杆件并整改后复检。
事件四:支架预压后,项目部认真对支架进行了质检。
问题:
1.事件一中,图4-2中构件A的名称是什么?施加预应力应在钢管撑的哪个部位?支撑轴力有损失时,应如何处理?附着在H型钢上的钢丝绳起什么作用?
2.事件二中,补充缺少的工序B.C.D的名称,现场需满足什么条件方可拆除钢管撑?
3.事件三中,顶托在满堂支架中起的什么作用?
4.专业监理指出支架不完整,补写缺少的部分?

5.支架预压的作用是什么?何时卸载?

正确答案
1.(1)A为牛腿(或三角托架);
(2)活络端(或活动端);
(3)应再次施加预应力;
(4)防坠落
2.B:顶板模板安装;C:管廊防水层施工;D:防水保护层施工。
混凝土传力带施工完成且强度达到设计要求。
3.(1)调节支架搭设高度;
(2)卸落模板。
4.斜撑、 剪刀撑、 扫地杆。

5.(1)预压作用:检验结构的承载能力和稳定性、消除其非弹性变形、 观测结构弹性变形及基础沉降情况。
(2)预压卸载时间以支架地基沉降变形稳定为原则确定,最后两次沉落量观测平均值之差不大于2mm时,即可终止预压卸载。
查看解析

相关试题

单选
路堤施工中,采用土工合成材料加筋的主要目的是提高路堤的()。
A 承载力 B 平整度 C 稳定性 D 水稳性
查看
单选
关于SMA混合料面层施工技术要求的说法,正确的是( )。
A SMA混合料宜采用连续式拌和设备生产 B 应采用自动找平方式摊铺,上面层宜采用钢丝绳或导梁引导的高程控制方式找平 C SMA混合料面层施工温度应经试验确定,一般情况下,摊铺温度不低于160℃ D SMA 混合料面层宜采用轮胎压路机碾压
查看
单选
城镇道路横断面常采用三、四幅路形式的是( )。
A 快速路 B 主干路 C 次干路 D 支路
查看
单选
关于热拌沥青混合料面层的分类和特点,描述正确的选项是( )
A 热拌沥青碎石(AM)是密级配混合料,空隙率8%~15% B OGFC排水沥青混合料属于开级配,空隙率18%~23% C 密级配沥青混合料(AC型)的空隙率范围为5%~10% D 骨架型混合料SMA属于半开级配混合料
查看
单选
暗挖隧道施工适用于各种水文条件的是( )
A 履带式凿岩台车 B TBM C 钻爆法 D 盾构法
查看
单选
某桥梁单孔跨径为35m,该桥属于( )。
A 特大桥 B 大桥 C 中桥 D 小桥
查看
单选
OGFC 排水沥青混合料是一种开级配沥青混合料,其空隙率为( )。
A 3%~6% B 8%~15% C 10%~15% D 18%~23%
查看
单选
道路土方开挖,挖掘机距离 110KV 电力架空线路沿垂直方向最小安全距离为( )。
A 1.5m B 3.0m C 4.0m D 5.0m
查看
单选
在不开槽施工方法中,适用于 3000mm 以上管道,施工速度快且距离长的施工方法是( )。
A 浅埋暗挖 B 水平定向钻 C 夯管 D 盾构
查看
单选
钢筋混凝土拱桥的承重结构主要是利用材料的( )性能。
A 抗拉 B 抗压 C 抗弯 D 抗扭
查看
刷题小程序
市政公用工程管理与实务题库小程序