分析

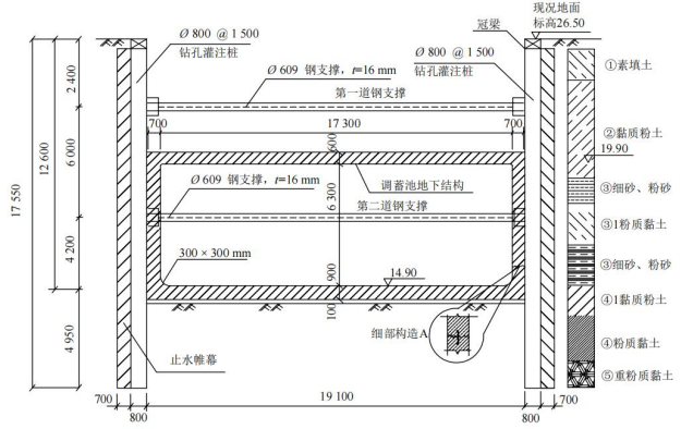
案例题 某公司承建城市郊区泵站调蓄工程,其中调蓄池为地下式现浇钢筋混凝土结构,混凝土强度等级为 C35,池内平面尺寸为 62.0m×17.3m,筏板基础。场地地下水类型为潜水,埋深 6.6 米。设计基坑长 63.8 米,宽 19.1米,深 12.6 米,围护结构采用Φ800mm 钻孔灌注桩排桩+2 道Φ609mm 钢支撑,桩间挂网喷射 C20 混凝土,桩顶设置钢筋混凝土冠梁。基坑围护桩外侧采用厚度 700mm 止水帷幕,如图所示。

施工过程中,基坑开挖至深度 8m 处,侧壁出现渗漏,并夹带泥沙;迫于工期压力,项目部继续开挖施工;同时安排专人巡视现场,加大地表沉降、桩身水平变形等项目的监测频率。
按照规定,项目部编制了模板支架及混凝土浇筑专项施工方案,拟在基坑单侧设置泵车浇筑调蓄水池结构混凝土。
问题:
1.计算止水帷幕在地下水中的高度。
2.指出基坑侧壁渗漏后,项目部继续开挖施工存在的风险。
3.为防止坑底失稳,项目部应采取哪些措施。
4.写出图中细部构造 A 的名称,并说明其留置位置的有关规定和施工要求。
5.根据本工程特点,试述调蓄池混凝土浇筑工艺应满足的技术要求

正确答案
1.地面标高为 26.5m,地下水埋深 6.6m,因此地下水位标高为 26.5-6.6=19.9m;止水帷幕在地下水中高度为 19.9-(26.5-17.55)=10.95m;因此止水帷幕在地下水中的高度为 10.95m。
2.基坑侧壁渗漏继续开挖的风险:围护结构外侧大量水土流失,造成围护结构背后土体过大沉降,导致围护结构支撑不平衡,向侧壁渗漏一侧倾斜,严重的会导致围护结构背后土体失去抗力造成基坑倾覆。
3.稳定坑底应采取的措施:加深围护结构入土深度、坑底土体加固、坑内井点降水等措施,并适时施作底板结构。
4.(1)构造 A 的名称:带钢板止水带(金属止水带)水平施工缝。
(2)施工缝留设位置:墙体水平施工缝应留在高出底板腋角以上不小于 200mm 处。
(3)施工要求
①安装时上下居中,左右对称,垂直平顺、固定牢固;不得在止水带上穿孔或用铁钉固定就位;搭接采用折叠咬接或搭接,搭接长度不得小于 20mm,咬接或搭接必须采用双面焊接。
②水平施工缝浇筑混凝土前,应先将其表面浮浆凿除,并清理干净,不得有积水,先铺一层与原混凝土中同配比的水泥砂浆,并应及时浇筑混凝土。
5.(1)基础筏板混凝土应连续浇筑,可采用分段分层方式进行浇筑;
(2)同一施工段的混凝土应连续浇筑,上层混凝土应在底层混凝土初凝前完成浇筑;
(3)池壁混凝土浇筑应采用串筒、溜槽等辅助进行,防止混凝土产生离析;
(4)应采用插入式振捣器进行振捣,既不漏振也不过振;
(5)浇筑完毕及时覆盖保湿养护,不少于 14d。
查看解析

相关试题

单选
下列关于路基填筑说法不正确的是( )。
A 路基填土不应使用有机土 B 填土颗粒不应大于150mm C 路基填土宽度每侧应比设计宽度宽500mm D 填土含水量应在最佳含水量范围之内
查看
单选
混凝土结构中植入的钢筋,应进行( )试验。
A 抗拔 B 抗弯 C 抗压 D 抗剪
查看
单选
基坑面积较大时,宜采用的加固平面布置的形式( )。
A 墩式加固 B 岛式加固 C 裙边加固 D 抽条加固
查看
单选
桥梁防水混凝土基层施工质量检验的主控项目不包括( )。
A 含水率 B 粗糙度 C 平整度 D 外观质量
查看
单选
关于钢梁施工的说法,正确的是( )。
A 人行天桥钢梁出厂前可不进行试拼装 B 多节段钢梁安装时,应全部节段安装完成后再测量其位置、标高和预拱度 C 施拧钢梁高强螺栓时候,最后应采用木棍敲击拧紧 D 钢梁顶板的受压横向对接焊缝应全部进行超声波探伤检验
查看
单选
在软土或其他不稳定土层中采用横排撑板支撑时,开始支撑的沟槽开挖深度不得超过( )m;开挖与支撑交替进行,每次交替的深度宜为0.4~0.8m。
A 2.0 B 3.0 C 4.0 D 1.0
查看
单选
地下水是引起基坑事故的主要因素之一,当基坑处于( )地层条件时,基坑容易出现流土、流砂,引起基坑坍塌。
A 黏性土 B 砂土或粉土 C 弱风化岩层 D 卵砾石层
查看
单选
同一竖井内的马头门不得同时施工。一侧隧道掘进( )m后,方可开启另一侧马头门。
A 5m B 10m C 15m D 20m
查看
单选
供热管网中,占据空间大的补偿器是( )。
A 球形补偿器 B 方形补偿器 C 套筒补偿器 D 波纹管补偿器
查看
单选
关于灌注水下混凝土的导管,正确的说法是( )。
A 导管每节长宜为5m B 导管接头采用法兰盘加锥形活套 C 轴线偏差不宜超过孔深的2% D 试压的压力宜为孔底静水压力的0.5倍
查看
刷题小程序
市政公用工程管理与实务题库小程序