首页
考研
最新考研题库
中外美术史23新版
建筑类
二级建造师
一级建造师
一级造价工程师
监理工程师
安全工程师
一级消防工程师
消防设施操作员
医学类
主治类
执业药师
护师(初级)资格证考试
主管护师(中级)资格证考试
护士资格证考试
医师类
中药学类
金融类
基金从业资格
银行从业资格
证券从业资格
期货从业资格
银行招聘考试
财会类
初级经济师
中级经济师
初级会计师
中级会计师
注册会计师
税务师
资产评估师
教师类
中学教师笔试
小学教师笔试
幼儿教师笔试
幼儿结构化面试
幼儿专业面试
中小学结构化面试
学历提升
成考(专升本)
成考(高起本、高起专)
自考
网校课程
登录
注册好礼
我的主页
我的提问
我的回答
退出
当前位置:
首页
>
目标控制(交通工程)
>
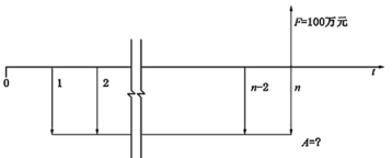
有现金流量图如下图所示,且已知(F/A,i,n)=1.333,F=100万元,则A应为( )万元。
单选
有现金流量图如下图所示,且已知(F/A,i,n)=1.333,F=100万元,则A应为( )万元。
A 100
B 133.3
C 75
D 25
正确答案
C
查看解析
搜索
相关试题
单选
下列关于监理工程师质量责任和义务的说法中,不正确的是( )。
A 未经监理工程师签字,建筑材料、构配件和设备不得在工程上使用或安装 B 未经监理工程师签字,不得进入下一道工序施工 C 未经监理工程师签字,不得进行竣工验收或拨付工程款 D 不得转让工程监理业务
查看
单选
省级交通运输主管部门应在事故情况稳定后的( )内汇总、核查事故数据,形成质量事故情况报告,报交通运输部工程质量监督管理部门。
A 1日 B 3日 C 5日 D 10日
查看
单选
下列属于项目建议书的主要内容的是( )。
A 节能评价 B 技术评价 C 风险分析 D 环境影响分析
查看
单选
下列控制方式中,属于被动控制的是( )。
A 前馈控制 B 开环控制 C 事后控制 D 面向未来的控制
查看
单选
将97.46修约到个位数是( )。
A 97.46 B 97.5 C 97 D 98
查看
单选
质量数据可以分为计量值数据和计数值数据,以下描述错误的是( )。
A 计量值数据是可以连续取值的数据,表现形式是连续性的 B 长度、厚度、直径、强度、化学成分是计量值数据 C 在工程质量检验中得出的原始检验数据大部分是计数值数据 D 计数值数据是指不能连续取值,只能计算个数的数值
查看
单选
在相关图法中,下列图形称之为( )。
A 强正相关 B 强负相关 C 不相关 D 非线性相关
查看
单选
一组水泥混凝土标准立方体试件进行抗压强度试验,极限荷载分别为780kN、710kN、900kN。该组试件的抗压强度为( )。
A 35.4MPa B 34.7MPa C 33.1MPa D 作废
查看
单选
下列不属于石油沥青的必检指标的是( )。
A 针入度 B 延度 C 软化点 D 密度
查看
单选
在进行分项工程质量评定时,关键项目(除机电工程)的合格率不应低于( )。
A 80% B 90% C 95% D 100%
查看
刷题小程序
热门试卷
2022年监理工程师考试《建设工程目标控制(交通工程)》临考密训卷
2022年监理工程师考试《建设工程目标控制(交通工程)》强化提分卷
2022年监理工程师考试《建设工程目标控制(交通工程)》密训卷(符合2022版新教材)
2022年监理工程师考试《建设工程目标控制(交通工程)》模拟卷(符合2022版新教材)
监理工程师《目标控制交通工程》模拟卷1
监理工程师《目标控制交通工程》模拟卷2
监理工程师《目标控制交通工程》模拟卷3
监理工程师《目标控制交通工程》模拟卷4
监理工程师《目标控制交通工程》押题密卷1
监理工程师《目标控制交通工程》押题密卷2
监理工程师《目标控制交通工程》押题密卷3
监理工程师《目标控制交通工程》押题密卷4
监理工程师《目标控制交通工程》押题密卷5
监理工程师《目标控制交通工程》押题密卷6
2024年监理工程师《目标控制交通工程》模拟题库1