首页
考研
最新考研题库
中外美术史23新版
建筑类
二级建造师
一级建造师
一级造价工程师
监理工程师
安全工程师
一级消防工程师
消防设施操作员
医学类
主治类
执业药师
护师(初级)资格证考试
主管护师(中级)资格证考试
护士资格证考试
医师类
中药学类
金融类
基金从业资格
银行从业资格
证券从业资格
期货从业资格
银行招聘考试
财会类
初级经济师
中级经济师
初级会计师
中级会计师
注册会计师
税务师
资产评估师
教师类
中学教师笔试
小学教师笔试
幼儿教师笔试
幼儿结构化面试
幼儿专业面试
中小学结构化面试
学历提升
成考(专升本)
成考(高起本、高起专)
自考
网校课程
登录
注册好礼
我的主页
我的提问
我的回答
退出
当前位置:
首页
>
目标控制(水利工程)
>
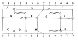
某双代号时标网络图如下,其实际进度前锋线如下图所示,计划工期为12周,根据前锋线下列说法正确的是( )。
多选
某双代号时标网络图如下,其实际进度前锋线如下图所示,计划工期为12周,根据前锋线下列说法正确的是( )。
A 工作E进度正常,不影响总工期
B 工作G进度拖延1周,影响总工期1周
C 工作H进度拖延1周,影响总工期1周
D 工作I最早开始时间若调后1周,不影响总工期
E 分析实际进度前锋线,若将K工作压缩1周,总工期不变
正确答案
ABE
查看解析
搜索
相关试题
单选
工程项目在施工过程中,由于工序交接多,中间产品多,隐蔽工程多,若不及时检查并发现其存在的质量问题,很容易产生第二类判断错误。这体现了质量具有()。
A 影响因素多 B 波动性大 C 隐蔽性 D 复杂性
查看
单选
监理单位在施工前还应参加( )组织的设计交底工作,以达到了解设计意图和质量要求,发现图纸差错和减少质量隐患的目的。
A 承包人 B 项目法人 C 项目监理机构 D 质量监督机构
查看
单选
不承重的侧面模板,混凝土强度达到( )MPa以上,保证其表面及棱角不因拆模而损坏时,方可拆除。
A 1.5 B 15 C 2.5 D 25
查看
单选
在影响施工质量的因素“4M1E”中,是直接影响工程项目的进度控制、质量控制、投资控制三大目标能否顺利实现关键的是( )。
A 人的因素 B 材料因素 C 施工设备 D 施工方法
查看
单选
当起点节点为多项工作的开始节点或终点节点为多项工作的完成节点时,可用()绘图。
A 母线法 B S 曲线法 C 单代号法 D 双代号法
查看
单选
施工阶段的质量控制中对开工条件控制,属于质量控制阶段的( )。
A 事前阶段 B 事中阶段 C 竣工阶段 D 后评价阶段
查看
单选
承包人未通知监理机构到场检查,私自将工程隐蔽部位覆盖的,监理机构有权指示承包人钻孔探测或揭开检查,由此增加的费用和(或)工期延误由( )承担。
A 承包人 B 分包人 C 发包人 D 监理人
查看
单选
在水利工程质量控制的依据中,( )是施工单位进行施工准备和指导现场施工的规划性、指导性文件。
A 设计图纸 B 施工组织设计 C 监理规划 D 监理大纲
查看
单选
一般而言,当工序能力指数小于1时,说明()。
A 工程能力优质 B 工程能力不足 C 工程能力勉强 D 工程能力良好
查看
单选
合同项目开工申请表的填写单位是( )。
A 监理单位 B 施工单位 C 检测单位 D 项目法人
查看
刷题小程序
热门试卷
2022年监理工程师考试《建设工程目标控制(水利工程)》强化提分卷
2022年监理工程师考试《建设工程目标控制(水利工程)》临考密训卷
2021年监理工程师考试《建设工程目标控制(水利工程)》密训卷
2021年监理工程师考试《建设工程目标控制(水利工程)》模拟卷
2023目标控制(水利工程)模拟1
2023目标控制(水利工程)模拟2
2023目标控制(水利工程)模拟3
2023目标控制(水利工程)模拟4
2023目标控制(水利工程)押题密卷1
2023目标控制(水利工程)押题密卷2
2023目标控制(水利工程)押题密卷3
2023目标控制(水利工程)押题密卷4
2023目标控制(水利工程)押题密卷5
2023目标控制(水利工程)押题密卷6
2024年监理工程师《监理目标控制(水利工程)》模拟题库1