首页
考研
最新考研题库
中外美术史23新版
建筑类
二级建造师
一级建造师
一级造价工程师
监理工程师
安全工程师
一级消防工程师
消防设施操作员
医学类
主治类
执业药师
护师(初级)资格证考试
主管护师(中级)资格证考试
护士资格证考试
医师类
中药学类
金融类
基金从业资格
银行从业资格
证券从业资格
期货从业资格
银行招聘考试
财会类
初级经济师
中级经济师
初级会计师
中级会计师
注册会计师
税务师
资产评估师
教师类
中学教师笔试
小学教师笔试
幼儿教师笔试
幼儿结构化面试
幼儿专业面试
中小学结构化面试
学历提升
成考(专升本)
成考(高起本、高起专)
自考
网校课程
登录
注册好礼
我的主页
我的提问
我的回答
退出
当前位置:
首页
>
目标控制(土木建筑)
>
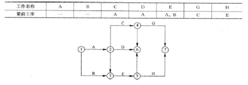
根据下表给定的逻辑关系绘制某分部工程双代号网络计划如下图所示,其作图错误的是( )。
单选
根据下表给定的逻辑关系绘制某分部工程双代号网络计划如下图所示,其作图错误的是( )。
A 节点编号不对
B 逻辑关系不对
C 有多个起点节点
D 有多个终点节点
正确答案
D
查看解析
搜索
相关试题
单选
在设备运往现场前,项目监理机构应按设计要求检查设备制造单位对待运设备采取( )的措施。
A 封闭和覆盖 B 包裹和覆盖 C 防护和包装 D 防护和封闭
查看
单选
为确保工程质量事故的处理效果,凡涉及结构承载力等使用和其他重要性能的处理工作,常需做( )工作。
A 常规的检测 B 试验验证 C 必要的试验和检验鉴定 D 方案论证
查看
单选
工程在规定的条件下,满足规定功能要求使用的年限,也就是工程竣工后的合理使用寿命周期。这体现了建设工程质量特性中的( )。
A 适应性 B 耐久性 C 性 D 经济性
查看
单选
下列抽样检验方法中,( )广泛用于原材料、构配件的进货检验和分项工程、分部工程、单位工程完工后的检验。
A 简单随机抽样检验法 B 分层随机抽样检验法 C 系统随机抽样检验法 D 多阶段抽样检验法
查看
单选
采用定额单价法计算工程费用时,若分项工程的名称、规格、计量单位与预算单价或单位估价表中所列内容完全一致时,对定额的处理方法一般是( )。
A 调量不换价 B 可以直接套用预算单价 C 编制补充单位估价表 D 按实际使用材料价格换算预算单价
查看
单选
根据相关规定,通常情况下,施工方案由( )组织编制。
A 拟派项目经理 B 施工单位技术负责人 C 项目技术负责人 D 质量管理人员
查看
单选
根据《建设工程工程量清单计价规范》GB50500—2013,因不可抗力事件导致的损害及其费用增加,应由承包人承担的是( )。
A 工程本身的损害 B 承包人的施工机械损坏 C 工程所需的修复费用 D 发包方现场的人员伤亡
查看
单选
某一新建小区的公共建筑单项工程的土建工程概算为300 万元,采暖工程概算为20 万元,给水排水工程概算为15 万元,通风工程概算为10 万元,机械设备及安装工程
A 360 B 390 C 330 D 415
查看
单选
某双代号网络计划如下图所示(时间单位:d),其计算工期是( )d。
A 16 B 17 C 18 D 20
查看
单选
采用0—1 评分法确定产品各部件功能重要性系数时,各部件功能得分见下表,则部件A 的功能重要性系数是( )。
A 0.267 B 0.200 C 0.133 D 0.333
查看
刷题小程序
热门试卷
2022年监理工程师考试《建设工程目标控制(土木建筑工程)》临考密训卷
2022年监理工程师考试《建设工程目标控制(土木建筑工程)》强化提分卷
2022年监理工程师考试《建设工程目标控制(土木建筑工程)》全真模拟卷
2022年监理工程师考试《建设工程目标控制(土木建筑工程)》密训卷(符合2022版新教材)
2022年监理工程师考试《建设工程目标控制(土木建筑工程)》冲刺卷(符合2022版新教材)
2022年监理工程师考试《建设工程目标控制(土木建筑工程)》模拟卷(符合2022版新教材)
监理工程师《 目标控制土木建筑》模拟卷1
监理工程师《 目标控制土木建筑》模拟卷2
监理工程师《 目标控制土木建筑》模拟卷3
监理工程师《 目标控制土木建筑》押题密卷1
监理工程师《 目标控制土木建筑》押题密卷2
监理工程师《 目标控制土木建筑》押题密卷3
监理工程师《 目标控制土木建筑》押题密卷4
监理工程师《 目标控制土木建筑》押题密卷5
监理工程师《 目标控制土木建筑》押题密卷6