分析

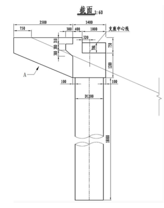
案例题 某立交桥工程,该桥为平行分离式立交桥,1#、2#桥台与 3#、4#桥台完全相同,如下图(图中除高程为 m 以外,其余单位均为 mm),1#、2#桥台支座中心线里程桩号为 K1+160m,3#、4#桥台支座中心线里程桩号为 K2+760m,本桥梁跨越一条交通繁忙的铁路、一条城市主要环路和一条有中小船只频繁通航的河流。全桥共 60 跨。其中跨越铁路路段采用穿巷架桥机法施工;跨越城市环路路段 40m 采用预制钢梁,因梁体过重,为保证安全,项目部决定现场搭设满堂支架法施工(断路 24h),支架单点集中荷载 10KN;跨越河道段岸边为 34#、39#墩,河中 35#~38#墩,下部结构采用筑岛施工桩基、承台、桥墩,上部结构采用悬臂浇筑法施工;本桥梁除跨越位置以外均采用预制梁现场吊装施工,采用简支变连续法施工。
桩基采用钻孔灌注桩与沉入桩相结合的形式,其中有 8 个承台下面桩基采用沉入桩方式,根据现场土质情况,设计要求采用振动沉桩方式,每承台下为 32 根桩。钻孔灌注桩为泥浆护壁成孔, 钻孔机械为旋挖钻。承台尺寸为 8×4×2.5,部分承台埋深超过 3m。
工程开工前,项目部根据本工程编制了安全专项施工方案,并且进行了专家论证,并针对本工程实际特点,办理了夜间施工的手续。

问题.
1·本工程桥梁全长为多少 m
2·图中 A 是什么。请简述桥台起到什么作用
3·本工程除夜间施工时办理相关手续外,在具体施工过程中还找哪些部门办理手续
4·承台施工中,如何防止混凝土产生裂缝

正确答案
1· 桥梁全长为 2760-1160+(2.5+0.32+0.4)×2=1606.44m
2·1) A 是侧墙(耳墙)
2)桥台的作用:设在桥的两端;一边与路堤相接,以防止路堤滑塌;另一边则支承桥跨结构的端部。
3· 河道管理部门和航运部门;铁路管理部门和铁路运输部门;市政工程行政主管部门和公安交通管理部门。
4· 防止混凝土产生裂缝的措施:
(1)采用水化热较低的水泥;
(2)尽可能降低水泥用量;
(3)控制集料的级配及其含泥量;
(4)选用合适的缓凝、减水等外加剂;
(5)控制好混凝土坍落度,不宜大于180mm,一般在120±20 mm即可;
(6)混凝土采取分层浇筑措施,应满足每一处混凝土在初凝以前就被上一层新混凝土覆盖并捣实完毕;
(7)保持适宜的温度,混凝土的中心温度与表面温度之间、混凝土表面温度与室外最低气温之间的差值均应小于20℃;
(8)混凝土内部预埋水管,浇筑过程抛投毛石法;
(9)混凝土表面以及模板外侧覆盖保温材料,拆模后立即回填或再覆盖保护。
查看解析

相关试题

刷题小程序
市政公用工程管理与实务题库小程序
热门试卷