分析

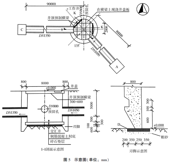
案例题 项目部承接一项顶管工程,其中DN1350mm管道为东西走向,长度90m;DN1050mm管道为偏东南方向走向,长度80m,设计要求始发工作井y采用沉井法施工,接收井A、C为其他标段施工(如图5示),项目部按程序和要求完成了各项准备工作。

开工前,项目测量员带一测量小组按建设单位给定的测量资料进行高程点与y井中心坐标的布设,布设完毕后随即将成果交予施工员组织施工。
按批准的进度计划先集中力量完成y井的施工作业,按沉井预制工艺流程,在已测定的圆周中心线上按要求铺设粗砂与D,采用定型钢模进行刃脚混凝土浇筑,然后按顺序先设置E与F、安装绑扎钢筋,再设置内、外模,最后进行井壁混凝土浇筑。
下沉前,需要降低地下水(已预先布置了喷射井点),采用机械取土;为防止y井下沉困难,项目部预先制定了下沉辅助措施。
y井下沉到位,经检验合格后,顶管作业队进场按施工工艺流程安装设备:K→千斤顶就位→观测仪器安放→铺设导轨→顶铁就位。为确保首节管节能顺利出洞,项目部按预先制定的方案在y井出洞口进行土体加固:加固方法采用高压旋喷注浆,深度6m(地质资料显示为淤泥质黏土)。
问题:
1.按测量要求,该小组如何分工?测量员将测量成果交予施工员的做法是否正确,应该怎么做?
2.按沉井预制工艺流程写出D、E、F的名称;本项目对刃脚是否要加固,为什么?
3.降低地下水的高程至少为多少米(列式计算)?有哪些机械可以取土?下沉辅助措施有哪些?
4.写出K的名称,应该布置在何处?按顶管施工的工艺流程,管节启动后,出洞前应检查哪些部位?
5.加固出洞口的土体用哪种浆液,有何作用?注意顶进轴线的控制,做到随偏随纠,通常纠偏有哪几种方法?

正确答案
1.(1)测量员:对控制点进行复测;进行平面控制网及高程控制网布设,必须实行复核制,并履行书面签字手续;对于控制桩进行加固保护,并定期复核。
配合人员∶辅助测量,扶尺,布设测桩并保护。
(2)布设完毕后随即将成果交予施工员组织施工的做法不正确。布设完毕后应采用不同数据采集人核对的方法,分别核对从图纸上采集的数据、实测数据的计算过程与计算结果,并据以判定测量成果的有效性,并报监理工程师复核后方可使用。
2.(1)D一垫木,E一支架和脚手架,F一预留孔和管道洞口预埋件
(2)该沉井下沉位置的地质为淤泥质黏土,非坚硬地层,刃脚位置无需特殊加固。若为防止脚踏面受损,可在踏面部位使用角钢加固。
3.(1)地下水位应降低至刃脚踏面以下0.5m。则应降至标高为0.000-5.000-0.5-0.3-0.1-0.6-0.5=-7.000(m)
(2)抓铲挖土机、长臂挖掘机、抓斗吊。
(3)下沉辅助措施有:①沉井外壁采用阶梯以减少下沉摩擦阻力时,在井外壁与土体之间应有专人随时用黄砂均匀灌入;②采用触变泥浆套助沉;③空气幕助沉;④爆破方法开挖下沉。
4.(1)K-后背墙(后背、后座或后座墙),应布设在沉井井壁和千斤顶之间,后背工作面与管道轴线垂直。
(2)管节启动后,出动前应检查顶进设备(顶铁、千斤顶、油泵、油表)是否运行正常,管节本体是否出现裂痕破坏,沉井井壁是否出现裂痕,顶进开挖面是否稳定。
5.(1)可采用水泥浆、化学浆液。起到洞口土体加固及洞门密封防水堵水的作用,保证开挖面的稳定,防止地层过大变形。
(2)顶进纠偏方法有:挖土校正法、强制校正法、衬垫校正法、调整顶进合力位置法。
查看解析

相关试题

刷题小程序
市政公用工程管理与实务题库小程序
热门试卷