首页
考研
最新考研题库
中外美术史23新版
建筑类
二级建造师
一级建造师
一级造价工程师
监理工程师
安全工程师
一级消防工程师
消防设施操作员
医学类
主治类
执业药师
护师(初级)资格证考试
主管护师(中级)资格证考试
护士资格证考试
医师类
中药学类
金融类
基金从业资格
银行从业资格
证券从业资格
期货从业资格
银行招聘考试
财会类
初级经济师
中级经济师
初级会计师
中级会计师
注册会计师
税务师
资产评估师
教师类
中学教师笔试
小学教师笔试
幼儿教师笔试
幼儿结构化面试
幼儿专业面试
中小学结构化面试
学历提升
成考(专升本)
成考(高起本、高起专)
自考
网校课程
登录
注册好礼
我的主页
我的提问
我的回答
退出
当前位置:
首页
>
市政公用工程管理与实务
>
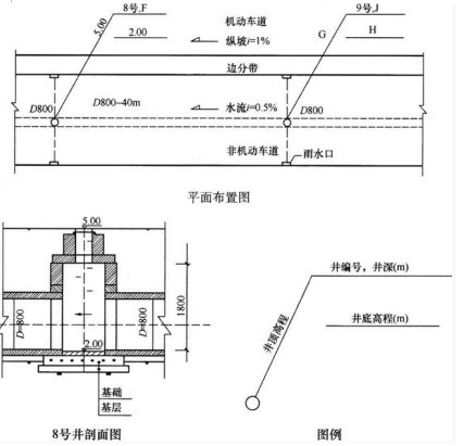
案例题 某公司承建一段新城镇道路,其雨水管道位于流沙地区,设计采用D800mm钢筋混凝土管,相邻井段间距40m,8号、9
分析
案例题 某公司承建一段新城镇道路,其雨水管道位于流沙地区,设计采用D800mm钢筋混凝土管,相邻井段间距40m,8号、9号雨水井段平面布置图及井室剖面图如下所示,8号、9号井类型一致。
施工前,项目部对部分相关技术人员的职责、管道施工工艺流程、管道施工进度计划、验收等内容规定如下:
1.由A(技术人员)具体负责:确定管线中线、检查井位置与沟槽开挖边线。
2.由质检员具体负责:沟槽回填土压实度试验;管道与检查井施工完成后,进行管道B试验(功能性试验)。
3.管道施工工艺流程如下:沟槽开挖与支护→c→下管、排管、接口→检查井砌筑→管道功能性试验→分层回填土与夯实。
4.管道验收合格后转入道路路基分部工程施工,该分部工程包括填土、整平、压实等工序,其质量检验的主控项目有压实度和D。
5.管道施工划分为三个施工段,时标网络计划如下图所示(有两条虚工作需补充)。
问题:
1.根据背景资料写出最符合题意的A、B、C、D的内容。
2.列式计算平面布置图中F、G、H、J的数值。
3.补全雨水管道施工时标网络计划图中缺少的虚工作(用时标网络图提供的节点代号及箭线作答,或用文字叙述,在背景资料中作答无效)。补全后的网络图中有几条关键线路,总工期为多少
正确答案
1.A——测量员;
B——严密性试验;
C——验槽及基础施工;
D——弯沉值。
2.F数值:5—2=3.00m,
G数值:5+40X 1%=5.4m;
H数值:2+40×0.5%=2.2m,
J数值:5.4—2.2=3.2m。
3.缺少虚工作④→⑤,⑥→⑦。
补全后的网络图中有6条关键线路。
雨水管道施工总工期为50d。
查看解析
搜索
相关试题
刷题小程序
热门试卷