分析

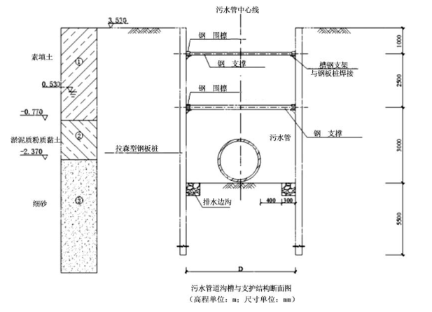
案例题 某公司承建沿海某开发区路网综合市政工程,道路等级为城市次干路,沥青混凝土路面结构,总长约为3km。随路敷设雨水、污水、给水、通信和电力等管线;其中污水管道采用预制混凝土管,开槽法施工,拉森形钢板桩支护。沟槽开挖深度为6.5m,地面标高+3.530m,地下水位标高+0.530m,采用真空井点降水,污水管道沟槽与支护结构断面如图8-1所示。
施工过程中发生如下事件:
事件一:沟槽开挖作业时,项目部为节省工期,采用挖槽机械一次挖至槽底设计标高的办法施工,造成槽底地基土超挖扰动,扰动深度在100~120mm,经查看,槽底土质主要为细砂,排水良好无地下水浸泡。
事件二:沟槽开挖作业完毕后,由项目技术负责人组织工程质量检验人员对槽底地基进行检查验收,验槽通过后拟准备进行安管作业。
事件三:管道安装完毕后,随即进行沟槽回填作业,为保证沟槽填土质量,项目部编制了沟槽回填施工技术方案,具体内容如下:
(1)管道两侧和管顶以上500mm范围内胸腔夯实,采用轻型压实机具,且保证管道两侧压实面的高差不应超过500mm。
(2)分段回填时,相邻段的接搓应呈垂直的平接缝,采用压路机碾压时,碾压重叠宽度不得小于100mm。

图8-1沟槽开挖断面示意图
问题:
1.事件一中,项目部所造成的地基土超挖扰动应如何处理?简述为了防止超挖扰动,挖样的方式进行?
2.指出事件二中的错误之处,并改正。
3.地基验槽时,应具体检查哪些项目?
4.判断事件三中沟槽回填施工技术方案是否正确,如有错误请改正。

正确答案
1.(1)可采用挖槽原土回填夯实,其压实度不应低于原地基土的密实度。
(2)机械开挖沟槽时,槽底应预留 200~300mm 厚的土层,由人工开挖至设计高程并整平。
2.沟槽开挖作业完毕后,由项目技术负责人组织工程质量检验人员对槽底地基进行检查验收错误,改正:沟槽开挖至基底后,槽底地基应由建设、勘察、设计、施工、监理单位共同验收。
3.应检查的项目包括沟槽平面尺寸、槽底高程、槽底土质、地基承载力、平整度、地下水位、围护结构与支撑结构稳定性等。
4.(1)管道两侧和管顶以上 500mm 范围内胸腔夯实,采用轻型压实机具,且保证管道两侧压实面的高差不应超过500mm 错误,改正:管道两侧和管顶以上 500mm 范围内胸腔夯实,采用轻型压实机具,且保证管道两侧压实面的高差不应超过 300mm。
(2)分段回填时,相邻段的接搓应呈垂直的平接缝,采用压路机碾压时,碾压重叠宽度不得小于 100mm 错误,改正:分段回填时,相邻段的接搓应呈台阶形,采用压路机碾压时,碾压重叠宽度不得小于 200mm。
查看解析

相关试题

单选
下列不属于泥浆护壁成孔方式的是( )。
A 正循环回转钻 B 冲击钻 C 长螺旋钻孔 D 旋挖钻
查看
单选
以下关于桥梁相关常用术语的表述说法错误的是( )。
A 计算矢高与计算跨径之比,为矢跨比,也称拱矢度 B 拱式桥两相邻拱脚截面形心点之间的水平距离为计算跨径 C 桥面与桥下线路路面之间的距离为桥下净空高度 D 从拱顶截面下缘至相邻两拱脚截面下缘最低点之连线的垂直距离为净矢高
查看
单选
下列关于桥梁附属结构施工技术的描述,正确的是( )。
A 桥跨结构的泄水管底部应与构筑物底面齐平 B 基层混凝土强度达到设计强度75%才可进行防水层施工 C 涂料防水层上沥青混凝土的摊铺温度应高于其耐热度 D 人行道结构应在栏杆、地袱完成后,桥面铺装前施工
查看
单选
下列关于地下水控制方法的说法,错误的是( )。
A 基坑涌水量不大时,最适宜采用的方法是集水明排法 B 集水明排法在基坑四角或每隔50~100m设置集水井 C 基坑范围内地下水位应降至基础垫层以下不小于0.5m D 地下水回灌方式包括重力回灌、真空回灌、压力回灌
查看
单选
下列关于城市综合管廊结构施工技术的说法中,错误的是( )。
A 预留孔、预埋管及止水带等周边混凝土浇筑时,应加强振捣 B 底板混凝土强度大于10MPa,再搭设满堂支架施工侧墙与顶板 C 混凝土侧墙和顶板,应连续浇筑不得留置施工缝 D 预制构件上有裂缝且宽度超过0.2mm时,应进行鉴定
查看
单选
使用机械外力手段来增加路基土的密度使土体固结,属于( )。
A 土质改良 B 土的补强 C 土的固化 D 土的约束
查看
单选
若刚性挡土墙在填土压力作用下,背离填土一侧移动,这时挡土墙承受的压力被称为( )。
A 主动土压力 B 静止土压力 C 被动土压力 D 隆起土压力
查看
单选
控制基坑变形的主要方法有( )。
A 增加开挖后未及时支撑的暴露时间 B 增加围护结构入土深度 C 坑底主动土压区土体加固 D 适时施作底板结构
查看
单选
关于预应力钢绞线管道压浆的说法,错误的是( )。
A 压浆前应对管道进行清理 B 预埋的排水孔、排气孔主要用于管道清理使用 C 压浆作业,每一工作班应留取不少于3组试块 D 钢绞线张拉完成后应及时对管道进行压浆
查看
单选
关于各类围护结构的特点,说法正确的是
A 钢板桩施工简便,施工噪声小 B 钢管桩截面刚度小于钢板桩 C 钢板桩止水性比钢管桩差 D SMW工法桩强度大,止水性好
查看
刷题小程序
市政公用工程管理与实务题库小程序