首页
考研
最新考研题库
中外美术史23新版
建筑类
二级建造师
一级建造师
一级造价工程师
监理工程师
安全工程师
一级消防工程师
消防设施操作员
医学类
主治类
执业药师
护师(初级)资格证考试
主管护师(中级)资格证考试
护士资格证考试
医师类
中药学类
金融类
基金从业资格
银行从业资格
证券从业资格
期货从业资格
银行招聘考试
财会类
初级经济师
中级经济师
初级会计师
中级会计师
注册会计师
税务师
资产评估师
教师类
中学教师笔试
小学教师笔试
幼儿教师笔试
幼儿结构化面试
幼儿专业面试
中小学结构化面试
学历提升
成考(专升本)
成考(高起本、高起专)
自考
网校课程
登录
注册好礼
我的主页
我的提问
我的回答
退出
当前位置:
首页
>
机电工程管理与实务
>
案例题 因厂区搬迁需要建设一临时厂房,待新厂区建成后再拆除临时厂房。临时厂房机电工程由某安装公司中标。合同内容:整体设备
分析
案例题 因厂区搬迁需要建设一临时厂房,待新厂区建成后再拆除临时厂房。临时厂房机电工程由某安装公司中标。合同内容:整体设备安装、解体设备安装、电气设备安装、管道安装等。
安装公司进场后,针对本工程设备安装多、交叉作业频繁、设备安装精细等的特点及难点编制专项施工方案。报技术负责人审批时,被要求保证质量和安全的情况下,对施工组织的作业形式进行优化后通过审批。
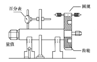
安装公司在某设备进行轴承间隙检测后,采用百分表进行轴承径向测量(图2-1所示),记录百分表最大读数和最小之差。
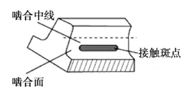
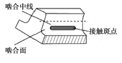
专项监理工程师对某设备的渐开线圆柱齿轮检查接触精度时,发现接触斑点(如图2-2)所示。专项监理工程师认为该齿轮安装有误差,造成该齿轮接触不良,要求安装公司整改。安装公司整改后,用该设备的集中润滑系统对其进行润滑,再次检查时该齿轮运转正常。
竣工后,安装公司按单位工程进行竣工资料组卷,移交给档案室,档案室根据临时厂房9年后拆除的特点,按规定设置相应的保管期限后作归档处理。
【问题】
1.说明施工方案优化的内容。施工作业形式有哪些?
2.轴承检查哪些间隙?图2-1中百分表主要是测量轴承径向的什么量值?
3.圆柱齿轮正常的接触斑点应该在什么位置?齿轮的装配精度包括哪些内容?
4.档案保管期限有哪几种?密级又有哪几种?
正确答案
1.(1)施工方案优化的内容:施工方法的优化、施工顺序的优化、施工作业组织形式的优化、施工劳动组织优化、施工机械组织优化等。。
(2)施工作业形式:顺序作业、平行作业、流水作业三种作业形式的一种或几种的综合方式。
2.(1)顶间隙、侧间隙、轴向间隙。
(2)测量的参数是径向位移(跳动量)。
3.(1)应趋于齿侧面中部。
(2)相对运动精度、配合面之间的配合精度和接触质量组成。
4.(1)保管期限分为:永久保管、长期保管、短期保管。
(2)密级分为:绝密、机密、秘密。
查看解析
搜索
相关试题
单选
下列关于焊接技术的说法正确的是( )。
A 影响钢结构焊接难度的因素包括板厚、钢材分类、受力状态、钢材形状 B 20HIC壁厚小于19mm时不需要焊前预热和焊后热处理 C 对受力不大、焊接部位难以清理的焊件,应选用碱性焊条 D 有焊后消除应力热处理要求的压力容器,经挖补修理后,应当根据补焊深度确定是否需要进行消除应力处理
查看
单选
高层建筑的垂直输配电应选用的母线类型是( )。
A 空气型母线槽 B 高强度母线槽 C 防火线母线槽 D 紧密型母线槽
查看
单选
下列关于管道清洗的说法中,不正确的是( )。
A 水冲洗流速不得低于1.5m/s,冲洗压力不得超过管道的设计压力 B 蒸汽管道吹扫前,管道系统的绝热工程应已完成 C 油管道应在机械设备系统试运行后进行油冲洗 D 不锈钢油系统管道宜采用蒸汽吹净后进行油清洗
查看
单选
在室外排水管道施工程序中,防腐施工的紧前工作是( )。
A 系统清洗 B 系统通水试验 C 管道安装 D 系统闭水试验
查看
单选
下列关于转子安装技术要点的说法,错误的是( )。
A 若转子吊装使用的是非专用横梁和吊索,要进行200%工作负荷试验,时间为12小时 B 低压内缸就位找正、隔板(套)调整完成,低压转子吊入汽缸中并定位后,再进行通流间隙调整 C 转子测量应包括:轴颈椭圆度和不柱度的测量,转子跳动测量、转子弯曲度测量、联轴器端面止口配合间隙测量 D 转子安装可以分为转子吊装、转子测量和转子、汽缸找中心
查看
单选
下列不属于优质非合金钢的是( )。
A 优质碳钢 B 碳素钢筋钢 C 焊条用碳钢 D 冲压薄板的低碳结构钢
查看
单选
下列选项关于电气材料的类型及应用说法错误的是( )。
A 无卤低烟电缆燃烧时的腐蚀性较低,因此对环境产生危害很小 B 铝绞线一般用于短距离电力线路 C 耐火电缆用于电缆密集的电缆隧道、电缆夹层中应首先选用B类耐火电缆 D 空气型母线槽不能用于垂直安装,因存在烟囱效应
查看
单选
下列不属于泵的性能参数的是( )。
A 流量 B 功率 C 扬程 D 噪声
查看
单选
采用水准仪和水准尺,只需计算一次水准仪高程,就可以简便地测算几个前视点高程的水准测量方法是( )。
A 高差法 B 仪高法 C 三角高程法 D 解析法
查看
单选
关于钢丝绳安全系数,说法正确的是( )。
A 作拖拉绳时安全系数≥4 B 载人吊篮时安全系数≥12 C 作捆绑绳扣使用时安全系数≥5 D 作卷扬机走绳时安全系数≥5
查看
刷题小程序
热门试卷
2022年二级建造师考试《机电工程管理与实务》冲刺卷(二)
2022年二级建造师考试《机电工程管理与实务》冲刺卷(一)
2022年二级建造师考试《机电工程管理与实务》模拟卷(三)
2022年二级建造师考试《机电工程管理与实务》模拟卷(二)
2022年二级建造师考试《机电工程管理与实务》模拟卷(一)
2022年二级建造师考试《机电工程管理与实务》机考模拟演练卷(二)(符合2022年新版教材)
2022年二级建造师考试《机电工程管理与实务》机考模拟演练卷(一)(符合2022年新版教材)
2022年二级建造师考试《机电工程管理与实务》冲刺卷(二)(符合2022年新版教材)
2022年二级建造师考试《机电工程管理与实务》冲刺卷(一)(符合2022年新版教材)
2022年二级建造师考试《机电工程管理与实务》模拟卷(三)(符合2022年新版教材)
《机电实务》深度模拟卷1
《机电实务》深度模拟卷2
二级建造师《机电实务》押题卷1
二级建造师《机电实务》押题卷2
二级建造师《机电实务》押题卷3