分析

案例题 某新建火车站站房工程,地下二层,地上三层,建筑面积地下1.5 万㎡,地上2.6 万㎡,现浇混凝土框架结构,建筑总高34 米。一层大厅高13.5m,长32m,大厅处有5 道后张预应力混凝土梁。施工中,总承包单位搭设了双排扣件式钢管脚手架(高度35 米)。
施工单位进场后,及时按照安全管理要求在施工现场存在安全风险的重要部位和关键岗位设置了相应的安全警示牌。
地下室顶板混凝土结构施工中,标准条件养护试件强度达到设计要求时,施工单位生产经理随即安排模板工拆除全部模板。一层大厅施工中,后张预应力混凝土梁强度达到要求后,生产经理安排作业人员拆除了梁底模板准备进行预应力张拉。二层模板拆除时,工人将拆下来的铝合金模板临时堆放在距楼层边0.8m 处等待集中吊运。
一层大厅施工前,总承包单位编制了混凝土模板支撑工程专项施工方案,内容包括工程概况、编制依据、施工计划等。经总承包单位项目技术负责人审核签字后,报总监理工程师审查,随后建设单位组织召开专家论证会对该专项方案进行论证,专家组由包括建设单位技术顾问在内的5 名成员组成。
结构施工阶段,公司安全部对现场进行安全检查。检查过程按照《建筑施工安全检查标准》(JGJ59-2011)的相关内容进行,某次检查结果部分内容如表3。
表3 某火车站站房工程建筑施工安全检查评分汇总表

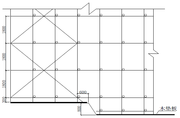
脚手架部分搭设立面如图1。在脚手架架体搭设过程中、达到设计高度后等阶段,施工单位项目经理均组织有关人员对脚手架及其地基基础进行检查和验收,并提出了整改意见。
图1 脚手架部分搭设立面

问题:
1.施工现场安全警示牌的设置应遵循哪些原则?现场应设置安全警示牌的重要部位有哪些?指出模板拆除中的不妥之处,并分别说明理由。
2.专项施工方案的内容还有哪些?专家论证的主要内容有哪些?指出专项方案审批论证程序中的不妥之处并改正。
3.写出表3 中A-E 所对应内容(如A:* 万m2),施工安全评定结论分几个等级,评价依据有哪些?
4.指出图1 中脚手架搭设的错误之处,并分别给出正确做法。还有哪些阶段需要对脚手架及其地基基础进行检查和验收?

正确答案
1.(1)施工现场安全警示牌的设置应遵循“标准、安全、醒目、便利、协调、合理”的原则。
(2)现场应设置安全警示牌的重要部位有:现场出入口、施工起重机械、临时用电设施、脚手架、通道口、楼梯口、电梯井口、孔洞、基坑边沿、爆炸物及有毒有害物质存放处等。
(3)不妥之处一:标准条件养护试件强度达到设计要求时拆除全部模板。
理由:应在同条件养护试块强度记录达到规定要求时方可拆顶板底模。
不妥之处二:施工单位生产经理随即安排模板工拆除全部模板。
理由:拆模之前必须要办理拆模申请手续,技术负责人批准后方可拆模。
不妥之处三:生产经理安排作业人员拆除了梁底模板准备进行预应力张拉。
理由:后张预应力混凝土结构底模必须在预应力张拉完毕后,才能进行拆除。
不妥之处四:工人将拆下来的铝合金模板临时堆放在距楼层边0.8m 处等待集中吊运。
理由:拆下的模板等堆放时,不能过于靠近楼层边沿,应与楼层边沿留出不小于1m 的安全距离,码放高度也不得超过1m。
2.(1)专项施工方案的内容还有:施工工艺技术、施工安全保证措施、施工管理及作业人员配备和分工、验收要求、应急处置措施、计算书及相关施工图纸。
(2)专家论证的主要内容有:
①专项施工方案内容是否完整、可行;
②专项施工方案计算书和验算依据、施工图是否符合有关标准规范;
③专项施工方案是否满足现场实际情况,并能够确保施工安全。
(3)不妥之处一:经总承包单位项目技术负责人审核签字后,报总监理工程师审查。
正确做法:专项施工方案应当由施工单位技术负责人审核签字、加盖单位公章,然后报总监理工程师审查。
不妥之处二:随后建设单位组织召开专家论证会对该专项方案进行论证。
正确做法:专家论证会应当由施工单位组织召开,实行施工总承包的,由施工总承包单位组织召开专家论证会。
不妥之处三:专家组由包括建设单位技术顾问在内的5 名成员组成。
正确做法:专家组成员人数不得少于5 名。与本工程有利害关系的人员不得以专家身份参加专家论证会。
3.(1)A:4.1,B:100,C:77,D:77,E:不合格。
(2)施工安全检查评定结论分为三个等级:
①优良:分项检查评分表无零分,汇总表得分值应在80 分及以上。
②合格:分项检查评分表无零分,汇总表得分值应在80 分以下,70 分及以上。
③不合格:①当汇总表得分值不足70 分时;②当有一分项检查评分表为零时。
4.(1)错误之处一:横向扫地杆在纵向扫地杆的上部;
正确做法:横向扫地杆应采用直角扣件固定在紧靠纵向扫地杆下方的立杆上。
错误之处二:纵向扫地杆距底座上皮的距离为300mm。
正确做法:纵向扫地杆应采用直角扣件固定在距底座上皮不大于200mm 处的立杆上。
错误之处三:架体搭设总高度为35m,外立面剪刀撑没有全立面连续设置。
正确做法:24m 以上的双排脚手架应在外侧全立面连续设置剪刀撑。
(2)还有以下阶段需要对脚手架及其地基基础进行检查和验收:
①基础完工后,脚手架搭设前;
②每搭设完6~8m 高度后;
③作业层上施加荷载前;
④遇有六级及以上大风或大雨后;
⑤冻结地区解冻后;
⑥停用超过一个月的,在重新投入使用之前。
查看解析

相关试题

刷题小程序
建筑工程管理与实务题库小程序
热门试卷