首页
考研
最新考研题库
中外美术史23新版
建筑类
二级建造师
一级建造师
一级造价工程师
监理工程师
安全工程师
一级消防工程师
消防设施操作员
医学类
主治类
执业药师
护师(初级)资格证考试
主管护师(中级)资格证考试
护士资格证考试
医师类
中药学类
金融类
基金从业资格
银行从业资格
证券从业资格
期货从业资格
银行招聘考试
财会类
初级经济师
中级经济师
初级会计师
中级会计师
注册会计师
税务师
资产评估师
教师类
中学教师笔试
小学教师笔试
幼儿教师笔试
幼儿结构化面试
幼儿专业面试
中小学结构化面试
学历提升
成考(专升本)
成考(高起本、高起专)
自考
网校课程
登录
注册好礼
我的主页
我的提问
我的回答
退出
当前位置:
首页
>
公路工程管理与实务
>
案例题 某施工单位承接了16km 的山区二级公路工程项目,其中包含一座长720m 的单洞双向两车道隧道,隧道起讫桩号为Y
分析
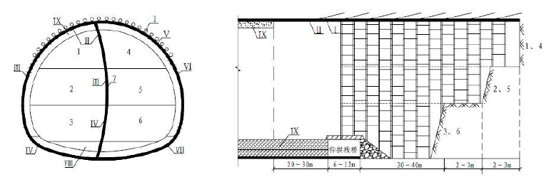
案例题 某施工单位承接了16km 的山区二级公路工程项目,其中包含一座长720m 的单洞双向两车道隧道,隧道起讫桩号为YK054+100~YK054+820,采用复合式衬砌结构,初期支护施工的主要内容包括:①初喷混凝土;②打设锚杆;③架立钢架;④挂钢筋网;⑤复喷混凝土。其中隧道进口段YK054+100 至YK054+220 属于浅埋段,围岩级别较差(Ⅴ级围岩)导致在施工过程中围岩变形较大,拱顶下沉超过最大允许值,因此经建设单位、设计单位、监理单位、施工单位现场勘查后,拟将进口段原设计台阶法开挖变更为中隔壁(CD)法,如图4-1 所示。
具体施工流程如图4-2 所示。
图4-1 中隔壁(CD)法施工示意图
图4-2 中隔壁(CD)法施工流程图
隧道施工前,施工单位项目部组织工程技术人员编制了隧道施工方案,施工过程中发生以下事件:
事件一:施工期间,施工单位在全隧开展综合地质超前预报,以掌握掌子面前方一定范围内围岩的地质条件,进而预测前方的不良地质以及隐伏的重大地质灾害。
事件二:隧道开挖过程中,技术人员采用激光隧道界限测量仪测定了隧道断面的超欠挖,提出欠挖控制要求及处理措施:拱脚等位置严禁欠挖;对于其它位置,当岩层完整、岩石抗压强度大于30MPa,并确认不影响衬砌结构稳定和强度时,每1m2 内欠挖面积不宜大于0.1m2。欠挖隆起量不得大于C 值;当欠挖面积及隆起量较大时,采用补炮措施进行处理。
事件三:开工前,施工单位根据《关于开展公路隧道工程施工安全风险评估试行工作的通知》,对该隧道工程进行了总体风险评估(总体风险评估等级为Ⅳ级),并出具评估报告。报告内容包括:评估依据、工程概况、评估步骤等。
问题:
1.补充隧道施工工序中的工作内容。
2.隧道地质超前预报的方法有哪些?
3.对隧道初期支护工序进行排序。
4.写出事件二中C 的数值,还有什么部位严禁欠挖?
5.请补充事件三中评估报告中的缺项。施工单位是否需要进行专项风险评估?说明理由。
正确答案
1.Ⅰ是超前支护;7 是拆除中隔壁临时支撑(拆除中隔墙);Ⅷ是仰拱填充施工;Ⅸ是二次衬砌施工。
2.隧道地质超前预报的方法主要有:地质调查法、超前钻探法、物探法、超前导洞法。
3.①-④-③-⑤-②。
4.C:50mm;拱脚以上1m 范围内及净空图折角对应位置。
5.评估方法、评估内容、评估结论及对策建议。需要,总体风险评估等级达到Ⅲ级(高度风险)及以上的工程应进行专项风险评估。
查看解析
搜索
相关试题
单选
根据《公路工程施工分包管理办法》,下列说法正确的是( )。
A 发包人与分包人没有合同关系 B 监理人与分包人有监理与被监理的关系 C 监理人对分包工程的实施具有全面管理责任 D 分包工程支付,应由分包人向监理人报送进度付款申请单
查看
单选
矿料级配主要由粗集料组成,细集料和填料较少,采用高黏度沥青结合料粘结形成,压实后空隙率大于15%的沥青混合料是( )。
A 密级配沥青混合料 B 半开级配沥青混合料 C 开级配沥青混合料 D 间断级配沥青混合料
查看
单选
连续梁桥可以实现较大跨径,源于其利用负弯矩来减少( )弯矩,从而使梁跨内的内力分配更合理。
A 固定端 B 自由端 C 铰接点 D 跨中
查看
单选
高路堑每挖深 3~5m,应复测( )和坡率。
A 标高 B 轴线 C 边坡边线 D 中线偏位
查看
单选
软土地区路堤施工期间,路堤中心线地面沉降速率24h 应不大于( )。
A 5mm B 5~10mm C 10mm D 10~15mm
查看
单选
悬臂浇筑法施工连续梁合龙段时,不符合的规定的是( )。
A 合龙前,应在合龙口两侧的梁体顶面预加压重,直至施工完成后撤除 B 合龙时,宜采取措施将合龙口两侧的悬臂端予以临时刚性连接后,再浇筑合龙段混凝土 C 应按照先边跨再中跨的顺序进行合龙 D 合龙段混凝土宜在一天中气温最低且稳定的时段内浇筑
查看
单选
隧道周边局部渗漏水时,可采用( )。
A 超前围岩注浆堵水 B 超前探孔排水 C 局部径向注浆 D 全断面径向注浆
查看
单选
某大桥桥墩高 35m,采用悬臂法施工。桥跨长度 1200m,在施工中突然发生桥跨主体结构垮塌事件,造成直接经济损失 800 万元。该事故等级为( )。
A 特别重大质量事故 B 重大质量事故 C 较大质量事故 D 一般质量事故
查看
单选
根据《公路工程标准施工招标文件》,除项目专用合同条款另有约定外,以下各项中解释合同文件优先的是 ( )。
A 已标价工程量清单 B 工程量清单计量规则 C 项目专用合同条款 D 公路工程专用合同条款
查看
单选
公路工程建设项目在施工图设计文件批准后,方可开展( )招标。
A 勘察设计 B 施工监理 C 设计施工总承包 D 施工
查看
刷题小程序
热门试卷
2022年一级建造师考试《公路工程管理与实务》预习卷
2022年一级建造师考试《公路工程管理与实务》临考提分卷(符合2022年新版教材)
2022年一级建造师考试《公路工程管理与实务》冲刺卷(符合2022年新版教材)
2022年一级建造师考试《公路工程管理与实务》密训卷(符合2022年新版教材)
2022年一级建造师考试《公路工程管理与实务》模拟卷(二)(符合2022年新版教材)
2022年一级建造师考试《公路工程管理与实务》模拟卷(一)(符合2022年新版教材)
《公路实务》模考试卷1
《公路实务》模考试卷2
《公路实务》模考试卷3
《公路实务》模考试卷4
《公路实务》模考试卷5
一级建造师考试《公路工程管理与实务》模拟题库1
一级建造师考试《公路工程管理与实务》模拟题库2
一级建造师考试《公路工程管理与实务》模拟题库3
一级建造师考试《公路工程管理与实务》押题卷1